Tọa lạc trong một khu dân cư ở Bintaro, ngôi nhà trông khác biệt với những ngôi nhà lân cận có mặt tiền đường tương tự. Được xây dựng với diện tích 200 m2, ngôi nhà với đặc điểm thú vị là lô đất tiếp giáp hai trục đường chính ở mặt trước và mặt sau, tác động đến hình dáng và bố cục chức năng trong ngôi nhà.
Mỗi góc trong ngôi nhà đều sở hữu các chức năng tương ứng tạo nên bầu không khí ấm áp. Spouse House / Nhà Bạn-đời được thể hiện theo một cách khác biệt.
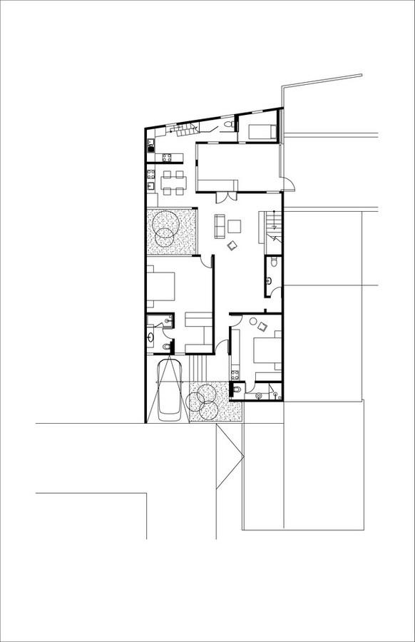
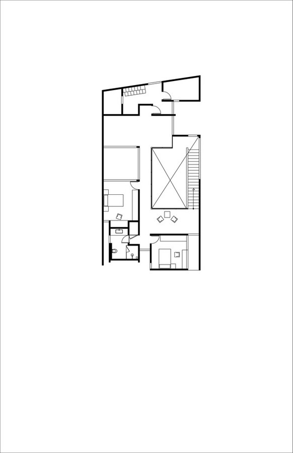
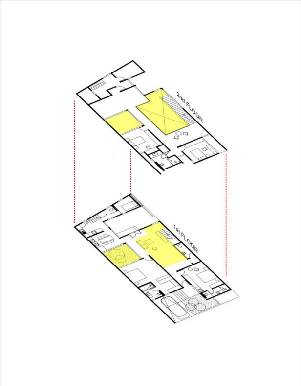
Sự hiện diện của hai lối vào ở mặt trước và mặt sau của lô đất tạo ra một hành lang lưu thông ẩn bên trong nhà; ngôi nhà, do đó cần có một “điểm dừng”. Kiến trúc sư sử dụng triết lý krowakisme (krowak = lỗ trống);krowakisme đó được diễn dịch với sự xuất hiện của sân trong, khoảng trống và cầu nối trên lầu 1.
Sân trong cung cấp không khí trong lành với thảm thực vật và cây cối, ánh sáng mặt trời và gió; Các khoảng trống tạo cảm giác không gian trở nên rộng rãi, bầu không khí trong nhà trở nên thoáng đãng hơn.
Ngôi nhà gồm hai tầng. Chủ sở hữu thuộc vào tuổi trung niên. Phòng ngủ master và sinh hoạt chung nằm trên tầng lầu, bên cạnh đó là phòng ngủ dành cho trẻ và các phòng phụ trợ được đặt trên cả hai tầng. Mỗi căn phòng đều được tiếp xúc với khoảng trống hoặc sân trong với đây đủ ánh sáng và không khí tự nhiên.
Mặt tiền của ngôi nhà được chia thành hai phần, nhìn bên ngoài trông giống như hai ngôi nhà được tích hợp lại. Điều này cũng dựa trên việc xem xét mặt tiền của ngôi nhà ở hướng Tây, phía chính diện tiếp xúc với ánh sáng mặt trời. Do đó, các chi tiết của hai khối nhà được thiết kế làm giảm thiểu tiếp xúc trực tiếp ánh sáng mặt trời trên bề mặt và đồng thời làm giảm bớt sự khép kín của ngôi nhà.
Spouse House còn có nghĩa là nhà của vợ / chồng, do đó, mô hình mặt tiền được thiết kế như một cặp sánh đôi, phù hợp với tính cách của gia chủ, đồng thời tạo ra sự hài hòa và đồng điệu với xung quanh.
Một số hình ảnh khác của công trình:
Thông tin công trình:
Thiết kế : Parametr Architecture (Kiến trúc); Yessi Natalia (Nội thất)
Hoàn thành : 2014
Hình ảnh : Lindung Soemahardi
Theo Thuỳ Nguyễn – Kiến trúc nhà ngói ( biên dịch từ Archdaily)

































