Nằm gọn trong làng bưởi được bao bọc bởi một dòng sông uốn lượn tuyệt đẹp trước khi đổ về trung tâm Huế, ngôi nhà gỗ nhỏ tên Hachi Lily này được xây dựng như một ngôi nhà gỗ để đáp ứng ước mơ tạo dựng của chủ nhân khi ”về vườn”.
Có một thuật ngữ được đặt ra để chỉ mối quan hệ hữu cơ giữa kiến trúc và vưòn xứ Huế: “Nhà vườn”. Mọi kiến trúc ở đây, từ nhà cửa dân gian, đến đình chùa, miếu vũ trong kiến trúc tôn giáo, đến ung điện, lăng tẩm trong kiến trúc cung đình đều gắn liền với yếu tố vườn. Nhà và vườn gắn bó nhau dù trong một không gian hẹp. Những kiến trúc sư đã mở ra chiều rộng và cả chiều sâu của không gian đó.
Nơi mọi ồn ào, náo nhiệt của thành phố đã lùi lại phía sau trả lại đây không gian tĩnh lặng, trong lành, chỉ còn lại tiếng gió đuổi nhau trên những tán cây, tiếng chim hót véo von; tận hưởng sự riêng tư và bầu không khí trong lành bên trong một khu vườn đầy hoa bưởi. Đây cũng là cơ sở để gia đình trông coi công trình homestay cũng sẽ được xây dựng trong vườn bưởi như một công việc kinh doanh của riêng mình.
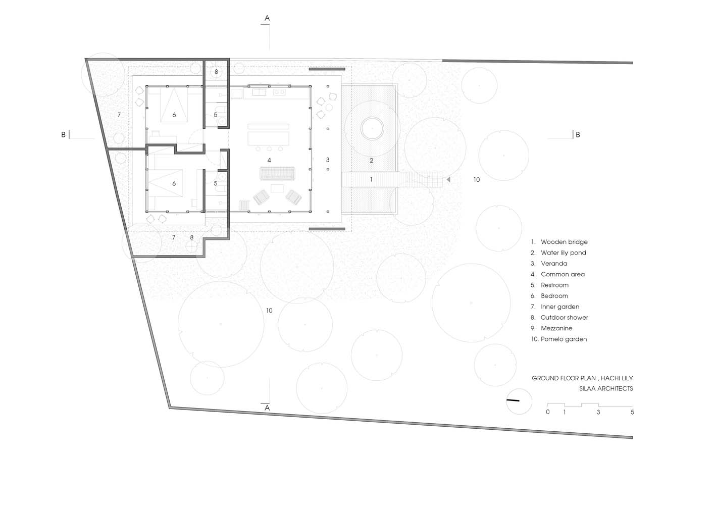
Căn nhà rộng 115m2 này được thiết kế với bố cục gồm khu sinh hoạt chung, 2 phòng ngủ, 2 phòng vệ sinh và các không gian xung quanh. Khu vực chung bao gồm khu sinh hoạt, ăn uống và bếp nhỏ kết nối với hàng hiên đi dọc theo mặt tiền chính, hướng ra ao hoa súng trước nhà. Có một cây cầu gỗ nhỏ bắc qua ao là lối vào chính. Hai phòng ngủ và phòng vệ sinh mang đến sự riêng tư và bầu không khí êm dịu bởi bức tường đá tự nhiên bao bọc xung quanh, tạo ra những khu vườn bên trong cho mỗi không gian. Các hồ hoa sen trước nhà là đặc điểm thú vị trong mỗi khoảng vườn chung quanh.
Gác lửng bằng gỗ được chiếu sáng bởi giếng trời trên mái là thư viện và kho lưu trữ của gia đình. Thật thú vị khi đọc một cuốn sách gần cửa sổ nhỏ và thưởng thức vườn bưởi bên dưới. Tất cả các không gian của ngôi nhà đều được bao phủ bởi một mái dốc lớn đảm bảo che nắng và giúp thích nghi với khí hậu nhiệt đới của khu vực luôn có nhiều ánh nắng gay gắt vào mùa hè và mưa lớn kéo dài vào mùa đông.
Hầu hết đồ nội thất, khung chính và tường của ngôi nhà được làm bằng gỗ nghiến được thu thập từ cấu trúc của các tòa nhà cũ bị phá bỏ. Các loại đá, gỗ, bê tông, thủy tinh, đất nung, dệt, nước, cây xanh… tạo nên một bảng màu đẹp. Những đứa trẻ và bà của chúng có thể có một giấc ngủ ngon trong bầu không khí ấm cúng và êm dịu này.
Thông tin công trình
- Hachi Lily House
- Thành phố: Huế
- Diện tích: 115 m²
- Năm: 2021
- Thiết kế: SILAA
- Kiến trúc sư trưởng: Nguyễn Hữu Sơn Dương
- Kiến trúc sư dự án: Nguyễn Minh Nhật, Lê Nguyễn Việt Quân
- Người tạo mẫu: Nguyễn Văn Det
- Hình ảnh: Hoàng Lê
Xem thêm hình ảnh Hachi Lily House
Theo homedecorplus.vn
















































































