Mục đích chính của nơi này là dành cho các hoạt động truyền thống gia đình và các sự kiện như thờ cúng tổ tiên, gắn kết gia đình và bạn bè. Trong suốt quá trình phát triển ý tưởng, suy nghĩ về “nhà tiệc” được hình thành.
Thông tin công trình:
- Kiến trúc: QBi Corp
- Diện tích: 260m2
- Dự án năm: 2019
- Hình ảnh: Quang Dam
- Sản xuất: Dulux, Panasonic, Toto
- Kiến trúc sư phụ trách: Tran Le Quoc Binh, Nguyen Duong Minh Nhat
- Cảnh quan: Vườn kiểng Cỏ Lạ
- Kết cấu: CPT cons.
- Ánh sáng: TCAS the Art of Lighting
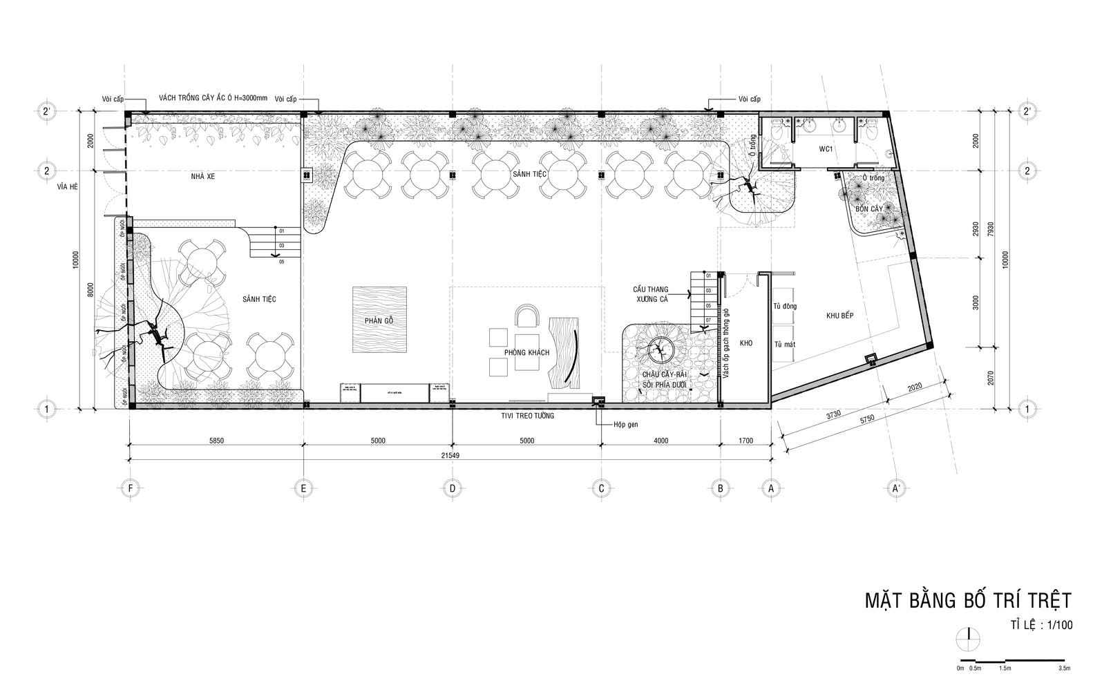
Đại gia đình của chủ sở hữu chuyển từ miền Bắc đến miền Nam của Việt Nam sinh sống. Họ thường tổ chức các cuộc họp mặt gia đình và bạn bè tại nhà của họ mỗi tháng với hàng trăm người đến như một truyền thống gia đình. Ngôi nhà của họ trở nên quá nhỏ cho những sự kiện như vậy. Nest House được xây dựng trên một lô đất rộng 260m2, ngôi nhà “chung” này được thiết kế theo cách độc đáo để mở ra tầng trệt, không gian sống và khu vực thờ cúng gần hơn với thiên nhiên.
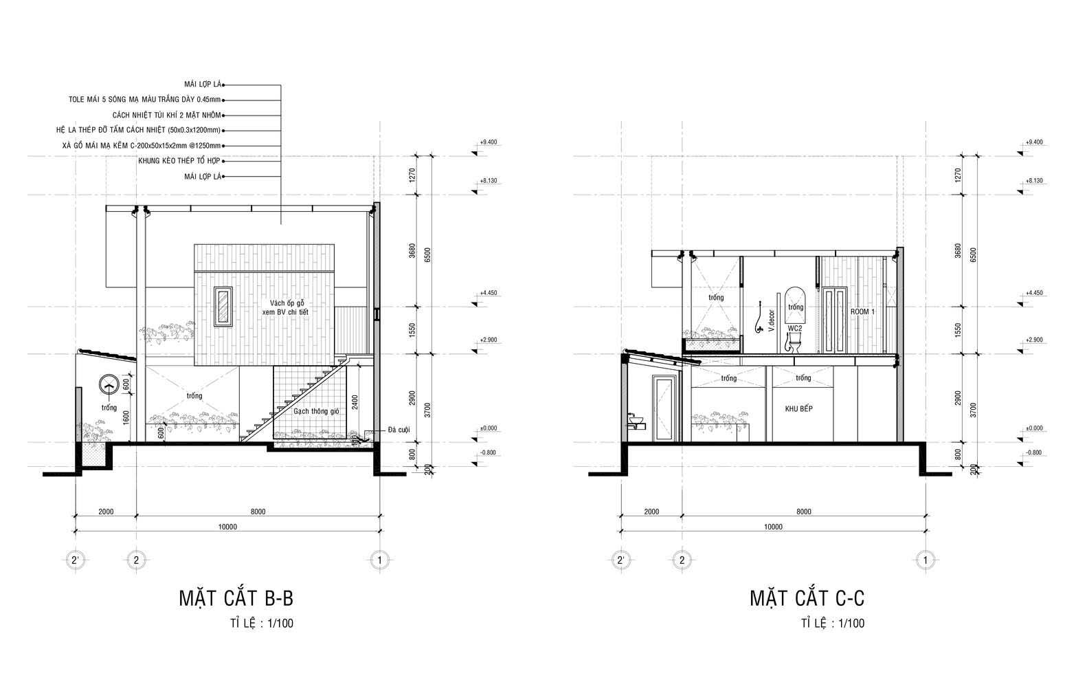
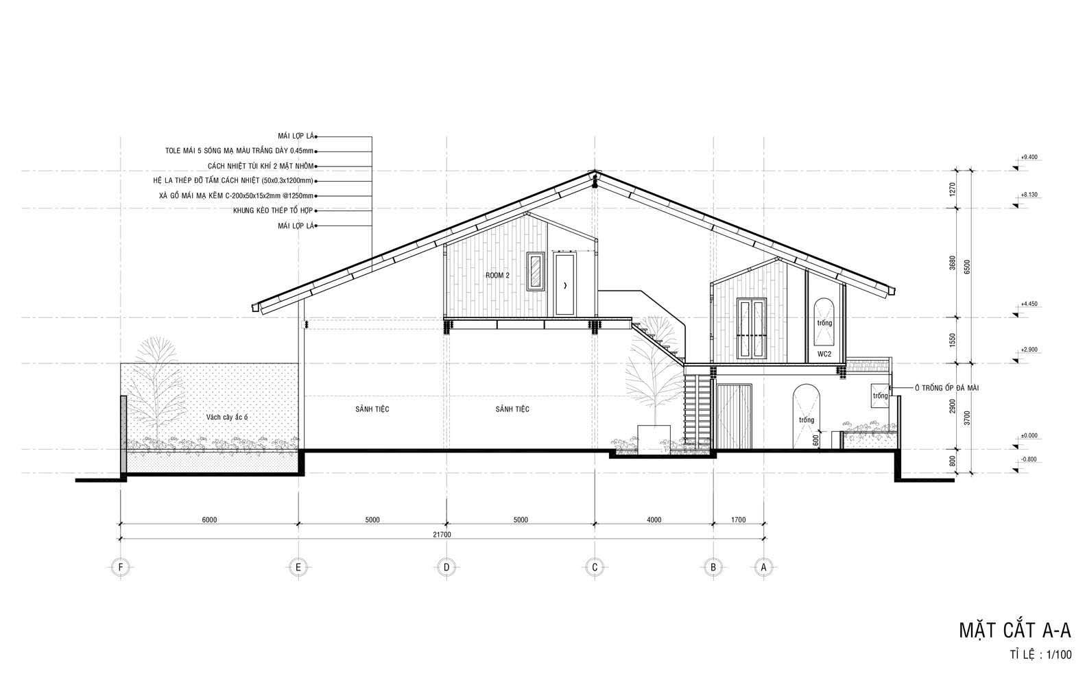
Hai phòng ngủ kiểu nhà gỗ được treo phía trên không gian mở như hai tổ chim. Những tổ này yên bình ở đó trong một khung cảnh thoải mái như trong một khu nghỉ mát. Ngôi nhà rất thú vị với dòng chảy của thiên nhiên và ánh sáng mặt trời len lỏi qua. Nhìn qua phòng khách là một khu vườn lớn, một góc của không gian thờ cúng, nơi ánh sáng mặt trời chiếu qua các tấm kính nhiều màu sắc, tạo cảm giác thanh thản cho nơi này.
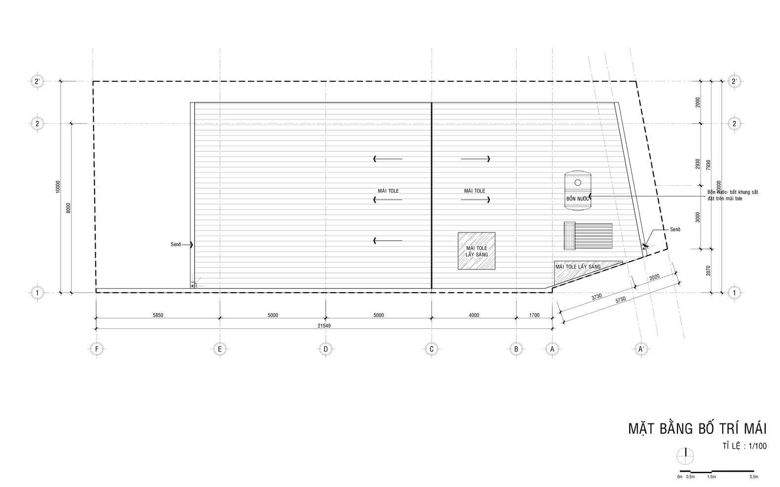
Mục đích chính của nơi này là dành cho các hoạt động truyền thống gia đình và các sự kiện như thờ cúng tổ tiên, gắn kết gia đình và bạn bè. Trong suốt quá trình phát triển ý tưởng, suy nghĩ về “nhà tiệc” được hình thành. Nhà tiệc được bố trí như một ngôi nhà dài, một loại nhà đơn, dài, hẹp tương xứng, được xây dựng bởi các vùng dân tộc thiểu số ở Tây Nguyên của Việt Nam. Phòng được xây dựng bằng gỗ khai hoang, vách ngăn có hoạ tiết từ các bức tường của những ngôi nhà dân tộc thiểu số. Hai căn phòng giống như hai tổ chim mở ra những khoảng trống nắng, gió và những mảng xanh nổi. Tầng trệt là không gian mở, không có cửa, không có tường, được bao quanh bởi cây xanh. Toàn bộ không gian tầng trệt tiếp xúc trực tiếp với mưa nắng mỗi ngày.
Với cách bố trí không gian như thế này, những người sống trong ngôi nhà sẽ tận hưởng được buổi sáng, quét dọn sân và tưới cây…, những điều mà trước đây họ chưa bao giờ nghĩ rằng họ sẽ làm với nhiều niềm vui, giờ dần dần trở thành một loại nghi thức. Tầng trệt mở trở thành một không gian linh hoạt. Nó không chỉ là nơi thờ cúng tổ tiên mà còn là sân chơi cho trẻ em, gia đình và bạn bè. Mỗi buổi chiều, chủ nhà có bạn bè đến cùng chơi bóng bàn, vào buổi tối một số người bạn đến cùng ăn uống.
Sau một thời gian, chủ nhà không muốn coi ngôi nhà như một “nhà tiệc” nữa. Bây giờ họ gọi nó là “nhà của tôi” và tự hào nói: Ngôi nhà của tôi rất sáng sủa vào buổi sáng, chúng tôi đang nghĩ đến việc chuyển đến đây. Thật tuyệt vời, và tổ tiên có đủ chỗ để chào đón tất cả các con của họ vào dịp Tết này (ngày lễ Tết Nguyên Đán truyền thống ở Việt Nam).
Theo Trung Duong – Designs (Biên dịch từ Archdaily)

























































