Gia chủ cải tạo căn nhà cũ trên mảnh đất 112 m2 ở Vũng Tàu làm chỗ ở cho bố mẹ và kinh doanh. Hiện trạng nhà gồm một tầng trệt, hai tầng và một tum. Yêu cầu của chủ nhà là tối đa hóa diện tích sử dụng, nổi bật, nhiều mảng xanh.
Với vật liệu chính là khung sắt, tấm cemboard, vách sắt và kính, nhóm thiết kế thay đổi không gian bên trong và phân chia lại công năng sử dụng, lối vào, cầu thang. Kết cấu nhẹ tạo sự linh động và dễ dàng thi công, giúp tiết kiệm chi phí cả về vật tư và nhân lực.
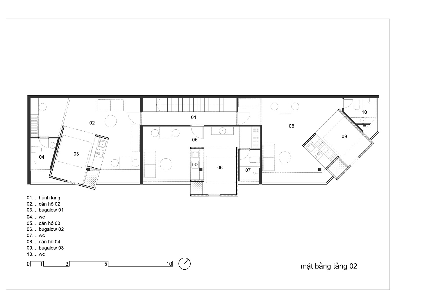
Sau bốn tháng cải tạo với chi phí khoảng 3 tỷ đồng, công trình có chín khối phòng ngủ. Nhà có lợi thế hai mặt tiền nên các phòng ngủ đều có khoảng mở thông thoáng. Mỗi khối bao gồm đầy đủ tiện ích cơ bản như giường ngủ, tủ quần áo, bếp, nhà tắm.
Tầng trệt có chỗ để xe, chỗ tiếp khách và phòng ngủ dành cho bố mẹ chủ nhà ở. Họ không cần phòng ngủ rộng, cũng muốn trông coi căn nhà như việc làm thêm.
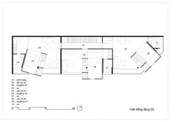
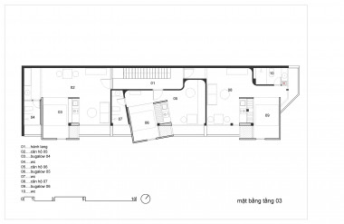
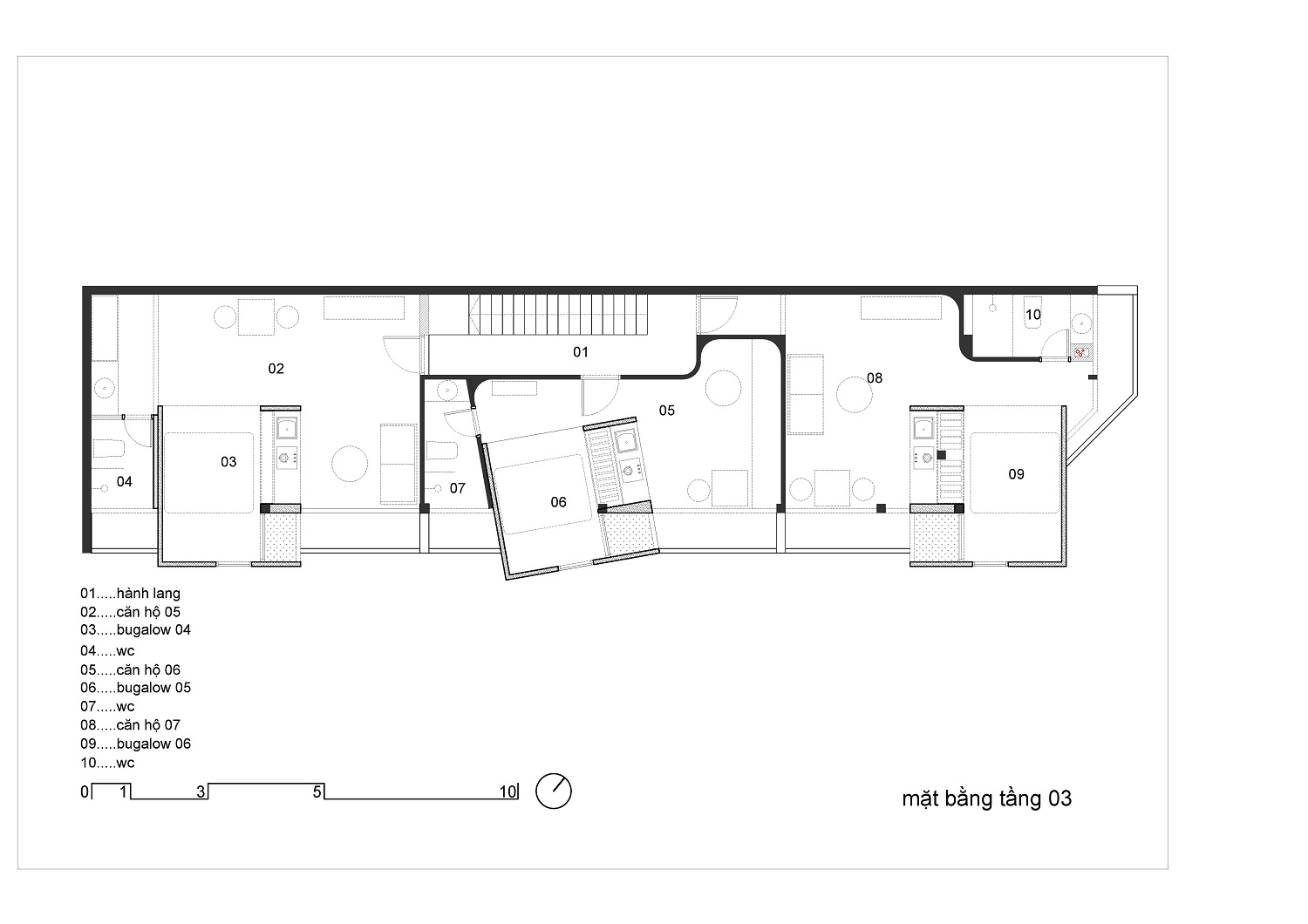
Tầng hai, tầng ba mỗi tầng có ba phòng ngủ với nhà vệ sinh riêng. Đặc biệt, sáu khối phòng ngủ này mang màu sắc và xoay các hướng khác nhau, nhô ra ngoài để tạo sự khác biệt cho công trình. Chúng cũng góp phần che đi các cột bê tông và cục nóng máy lạnh.
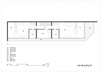
Tầng tum có hai phòng ngủ rộng hơn và khu giặt phơi. Nếu như các tầng dưới thể hiện sự năng động trẻ trung thì hai phòng ngủ áp mái thiên về nét mộc mạc, tối giản. Nhờ mái ngói truyền thống khoe kết cấu vì kèo kết hợp với hướng nhìn ra vườn treo chạy dọc nhà, chúng giống như một penthouse mini.
Bản vẽ công trình:
Một số hình ảnh khác của công trình:
Theo Minh Trang / VNExpress
Ảnh Quang Đàm









































