Nếu ví sông Hương là ranh giới chia TP Huế ra hai miền Bắc – Nam lớn thì trong Kinh thành Huế được chia hai miền Bắc – Nam nhỏ hơn bởi con sông Ngự Hà. Sự kết nối hai miền được thông qua bởi những chiếc cầu được thiết lập và quy hoạch gắn bó mật thiết với vai trò và chức năng trọng yếu của sông Ngự Hà. Những chiếc cầu này hình thành trong quá trình dựng xây Kinh đô, khởi dựng từ thời vua Gia Long và hoàn chỉnh đến các đời vua Minh Mạng, Thiệu Trị… Từ những chiếc cầu gỗ hình thành ban đầu đến những chiếc cầu vòm kiên cố được xây dựng bằng gạch vồ và đá thanh tồn tại cho đến ngày nay.
Tổng quan lịch sử hình thành
Ngự Hà là con sông được hình thành dưới thời hai vị vua đầu tiên của triều Nguyễn. Đây là con sông vừa tự nhiên, vừa nhân tạo và tiền thân của con sông này là sông Kim Long. Khi quy hoạch và chuẩn bị mặt bằng để xây dựng Kinh thành, các nhà kiến trúc thời Gia Long đã cho san lấp một số đoạn của sông để thiết lập nên thân thành. Một số đoạn nguyên thủy của nó đã được dùng vào vài việc khác, như tạo ra các hồ, ao và lòng sông Ngự Hà. Dòng chảy của con sông này trở nên hoàn chỉnh dưới thời Minh Mạng. Và cũng từ đây đã hình thành nên 10 chiếc cầu bắc qua con sông này trong chiều dài khoảng 3,6 km. Trải dài từ Đông sang Tây của Kinh thành, bao gồm những chiếc cầu sau: Cầu Thanh Long, cầu Đông Thành Thủy Quan, cầu Ngự Hà, cầu Bác Tế, cầu Khánh Ninh, cầu Bình Kiều, cầu Vĩnh Lợi, cầu Tây Thành Thủy Quan, cầu Hoằng Tế và cầu Xe Lửa. Xét riêng trong Kinh thành gồm 7 chiếc cầu, bao gồm: Cầu Đông Thành Thủy Quan, cầu Ngự Hà, cầu Bác Tế, cầu Khánh Ninh, cầu Bình Kiều, cầu Vĩnh Lợi và cầu Tây Thành Thủy Quan.
Vị trí sông Ngự Hà trong mặt bằng tổng thể Kinh thành Huế
Trải qua những thăng trầm về thời gian, cùng những biến cố lịch sử và thiên tai, hai cầu đã mất đi là cầu Bác Tế và cầu Bình Kiều. Hai cầu này được làm bằng gỗ và có lẽ bị sụp đổ do thiên tai bão lụt năm Thìn 1904 . Trên dòng sông này còn lại 5 chiếc cầu cho đến ngày nay. Chính điều này đặt ra không ít những thách thức, những vấn đề trong công tác bảo tồn kiến trúc các cầu vòm cũng như áp lực giao thông kết nối hai miền Bắc – Nam bên trong Kinh thành trong bối cảnh ngày càng phát triển của đô thị.
Đặc điểm kiến trúc của các cầu bắc qua sông Ngự Hà
1) Cầu Đông Thành Thủy Quan
Cầu nằm vị trí hạ lưu sông Ngự Hà trước khi đổ ra sông Đông Ba, trên trục đường Xuân 68 ngày nay. Năm 1806, cầu được xây dựng bằng gỗ với tên gọi là Thanh Long Kiều. Đến tháng 5-1830, vua Minh Mạng cho xây dựng lại bằng vật liệu mới bằng gạch vồ và đá thanh kiên cố, bền vững hơn. Cầu dài 71,7m; rộng 4,9m và cao 8,05m; vòm cầu bên dưới thông thủy rộng 8,4m. Lan can phía đông cao 1,55m được trổ 13 pháo nhãn hình tròn đường kính 0,5m. Lan can phía tây với chiều cao 0,95m với hai trụ đá có cùng kích thước 0,54m x 0,54m. Đây chính là hai trụ đỡ đòn quay của hệ thống cửa áp trước kia.
2) Cầu Ngự Hà
Cầu nằm trên trục đường Đinh Tiên Hoàng ngày nay. Năm 1808, dưới thời Gia Long, cầu được xây bằng gỗ được đặt tên là Thanh Câu Kiều. Đến tháng 6/1820, vua Minh Mạng cho xây dựng lại bằng vật liệu kiên cố. Với chiều dài 71,6m; rộng 4,86m và cao 8,0m. Cầu có 3 vòm cầu thông thủy bên dưới, vòm lớn rộng 6,4m, 2 vòm nhỏ hai bên rộng 4,0m. Phía bắc của cầu có nhà bia nhỏ, bên trong có bia đá, trên đó khắc bài văn bia “Ngự Hà bi ký” , do chính vua Minh Mạng ngự bút, nói về quá trình hình thành con sông và những chiếc cầu bắc qua.
3) Cầu Khánh Ninh
So với các cầu còn lại, cầu Khánh Ninh có tổng thể kiến trúc cầu và nhà bia hầu như còn nguyên vẹn nhất cho đến ngày nay. Giống như cầu Ngự Hà, cầu Khánh Ninh cũng có nhà bia ở đầu cầu phía Bắc. Theo văn bia “Khánh Ninh kiều bi ký” , do vua Minh Mạng ngự bút, cầu Khánh Ninh được xây dựng vào năm 1825. Cầu nằm trên trục đường Trần Văn Kỷ ngày nay, với chiều dài 44,6m; rộng 4,95m và cao 7,25m; vòm cầu bên dưới thông thủy rộng 6,4m.
4) Cầu Vĩnh Lợi
Cầu nằm trên tuyến đường Nguyễn Trãi, thuộc giữa phường Thuận Hòa và phường Tây Lộc với chiều dài 44,6m; rộng 5,0m và cao 7,25m; vòm cầu bên dưới thông thủy rộng 6,4m. Cầu Vĩnh Lợi được xây dựng vào năm 1825. Cầu có cấu trúc và chi tiết kiến trúc với nhiều điểm tương đồng với cầu Khánh Ninh.
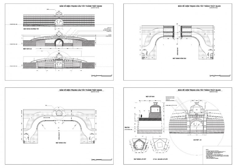
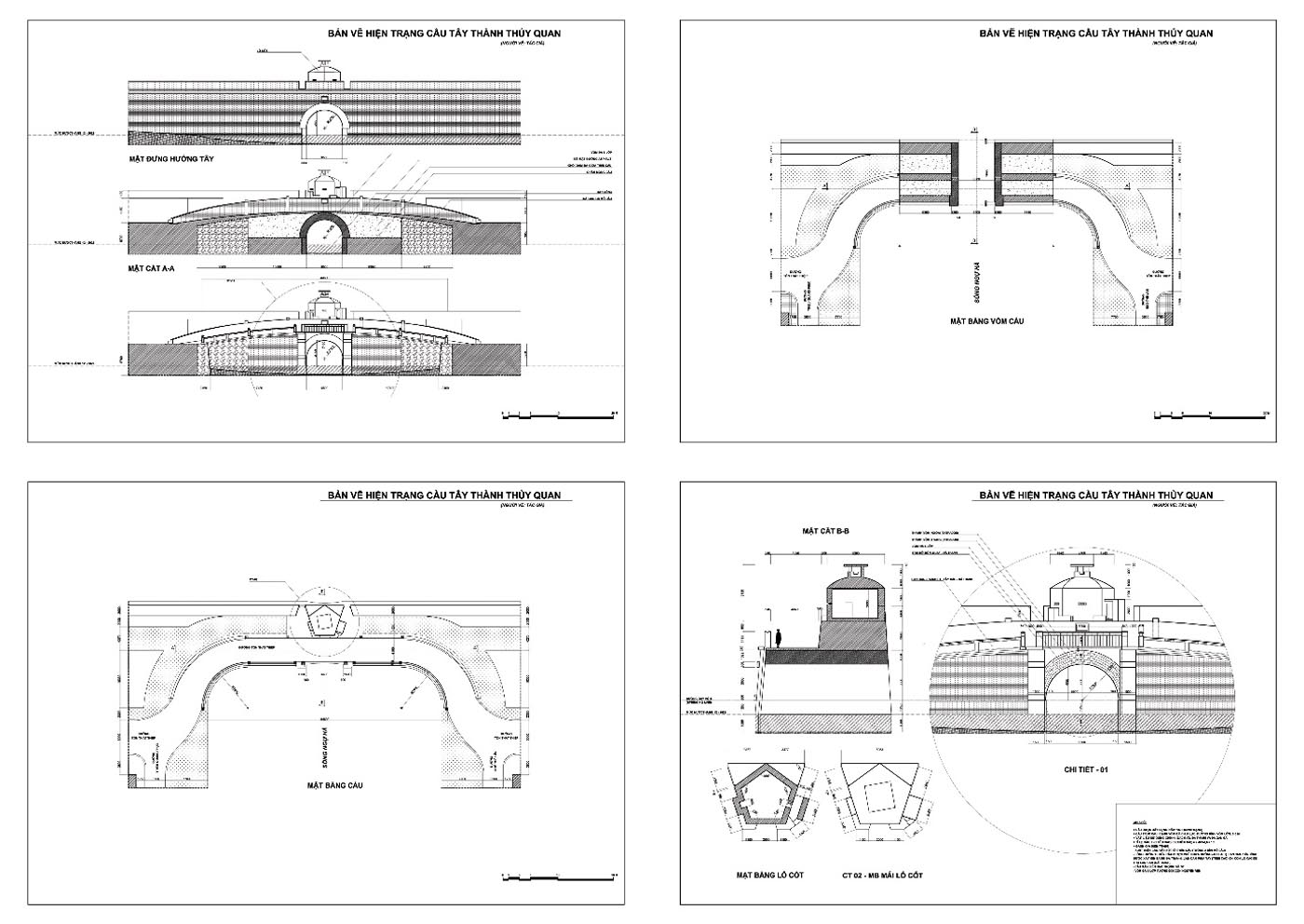
5) Cầu Tây Thành Thủy Quan
Cầu có hình dạng uốn cong hai đầu, được xây dựng sát mặt trong Kinh thành, nằm trên tuyến đường Tôn Thất Thiệp hiện nay. Với chiều dài 44,6m; rộng 4,65m và cao 7,46m; vòm cầu bên dưới thông thủy rộng 6,6m. Tương tự như cầu Đông Thành Thủy Quan, cầu Tây Thành Thủy Quan ngày nay vẫn còn hai trụ đỡ đòn quay bằng đá thanh dùng để đóng – mở “thủy quan“ thời kỳ trước kia bằng hệ cửa áp.
Bảng tổng hợp đặc trưng cơ bản 5 cầu
Tỉ lệ và cấu trúc các cầu bắc qua sông Ngự Hà
- Cầu Đông Thành Thủy Quan: H (chiều cao)/ D (chiều dài) = 7,46/44,6 = 1/5,9 = 1/6
- Cầu Ngự Hà: H (chiều cao)/ D (chiều dài) = 8,0/71,6 = ~ 1/9
- Cầu Khánh Ninh: H (chiều cao)/ D (chiều dài) = 7,25/44,6 = 1/6,2 = ~ 1/6
- Cầu Vĩnh Lợi: H (chiều cao)/ D (chiều dài) = 7,25/44,6 = 1/6,2 = ~ 1/6
- Cầu Tây Thành Thủy Quan: H (chiều cao)/ D (chiều dài) = 8,05/71,7 = 1/8,9 = ~ 1/9
Qua khảo sát và phân tích, 5 cầu bắc qua sông Ngự Hà trong Kinh thành có những thành phần, cấu trúc và đặc điểm chung như sau:
- Viên đá (gạch) hình nêm – Keystone;
- Các viên đá (gạch) xếp hình cung tròn – Voussoirs;
- Thành vòm trong – Intrados;
- Thành vòm ngoài – Extrados;
- Mố cầu – Abutment: Được xây bằng gạch vồ với chiều dày trung bình từ 1,2-1,5 m;
- Tường cánh mố cầu – Wing Wall: Được xây bằng gạch vồ. Tường cánh có chức năng hỗ trợ lực tải truyền theo phương ngang của mố cầu;
- Đai cầu – Belt Course: Thành phần phân chia tương ứng mặt đường trên cầu. Đai cầu nằm giữa thân cầu và lan can;
- Lan can – Parepet: Được xây bằng đá hoặc gạch vồ;
- Thành lan can – Capstone: Là thành phần trên cùng của lan can. Vật liệu được sử dụng ở đây là đá hoặc gạch vồ tại các cầu;
- Đường đáy vòm – Springing Line: Là đường giới hạn của đáy cung tròn với phần chân móng cầu;
- Độ cao của vòm – Rise: Là khoảng cách tính từ đường đáy vòm đến đỉnh vòm thành trong;
- Nhịp vòm – Span: Là khoảng đỡ của cầu. Đối với cầu Ngự Hà được thiết kế với 3 nhịp tương đương với 3 vòm tương ứng;
- Lớp dăm đá – Fill Material: Là khối đá dăm được nén chặt bên trong thân cầu;
Phân tích tải trọng
Tải trọng kết cấu vòm cầu điển hình với bán kính 3,2 m:
1) Các giả thiết
Để đơn giản tính toán khả năng chịu tải của cầu Vĩnh Lợi, ta giả thiết như sau:
- Giả sử khả năng chịu tải của nền đất bên dưới cống vòm đảm bảo chịu lực tốt.
- Bỏ qua khả năng làm việc của 2 cánh, cầu dễ bị phá hoại nhất với tiết diện nguy hiểm nhất là tiết diện giữa cầu, được xây vòm bằng gạch 250x250x500, xây 6 lớp bằng vữa vôi mật liên kết.
- Xét vòm cong và thiên về an toàn cho tính toán với R=3.8m (3.20m+1.250*0.5*3.8m)
2) Các thông số
Theo Bảng 9, Tiêu chuẩn TCVN 5573-2011: Kết cấu gạch đá và gạch đá cốt thép theo tiêu chuẩn thiết kế, ta có:
- R là cường độ chịu nén tính toán của khối xây gạch thông thường; R=1.7*0.75=1.275 MPa=127,5T/m2
- Rc là cường độ chịu cắt tính toán của khối xây gạch không có cốt thép: Rc =0.24*0.75=0.18MPa=18.0 T/m2
- Rku là cường độ chịu kéo khi uốn của khối xây gạch không có cốt thép: Rku =0.25*0.75=0.1875MPa=18.75 T/m2
Trong đó 0.75 là hệ số điều kiện làm việc.
3) Tải trọng
- Tải trọng bản thân các lớp (Dead load), xét 1m dài dọc cầu ta có:
- Tải trọng xe (Live load), đặt N=1.0T ở đỉnh vòm cầu
4) Sơ đồ tính và các biểu đồ nội lực
5) Kiểm tra điều kiện chịu nén của vòm gạch
6) Kiểm tra điều kiện chịu uốn của vòm gạch
Điều tiết nước và ngăn triều cường
Cùng với chức năng và vai trò của sông Ngự Hà, các cầu vòm này có vai trò làm giảm tốc độ dòng chảy thông qua các tiết diện nhỏ của các vòm cầu trong việc hỗ trợ chống ngập lụt, thoát nước ra ngoài Kinh thành. Việc thoát nước mưa và nước sinh hoạt theo hướng từ Tây sang Đông, dựa theo dòng chảy của con sông và độ nghiêng của Kinh thành về phía Đông Bắc. Chức năng ngăn triều cường dựa trên sự vận hành của hệ thống cửa áp trước đây (hiện nay chỉ còn tồn tại các trụ đá đỡ đòn quay). Trong đó, hai chiếc cầu ở hai phía Đông và Tây của Kinh thành là Đông Thành Thủy Quan và Tây Thành Thủy Quan đóng vai trò chốt chặn ngăn và điều tiết nước hai đầu của con sông Ngự Hà.
Thực trạng và nguyên nhân dẫn đến sự xuống cấp của kiến trúc các cầu vòm
Sự tồn tại của 5 chiếc cầu vòm bắc qua sông Ngự Hà trong Kinh thành cho đến ngày nay là một khoảng thời gian gần 2 thế kỷ. Đó là một khoảng thời gian đủ dài để nhìn nhận sức chịu đựng của các vật liệu xây dựng nên các cầu. Cùng với những tác động tiêu cực từ yếu tố thiên nhiên và con người qua quá trình sử dụng đã làm hư hại về mặt cấu trúc cầu cũng như các thành phần, chi tiết kiến trúc.
Nhìn chung, thực trạng của 5 chiếc cầu hiện nay bắc qua sông Ngự Hà đang dần xuống cấp với nhiều vết nứt lớn và những hư hại tăng dần theo năm tháng. Những thành phần, chi tiết kiến trúc mất đi do hư hỏng theo thời gian hoặc được xây mới lại một cách không hoàn chỉnh bởi những tác động của con người. Do vậy, đây là vấn đề thực sự cấp thiết để đề xuất các giải pháp trùng tu và bảo tồn những chiếc cầu này trong thời điểm hiện tại.
Sự xuống cấp của kiến trúc các cầu vòm bởi các nguyên nhân chủ yếu sau:
Thứ nhất, điều kiện khí hậu khắc nghiệt của vùng miền thường xuyên gây những tác động tiêu cực đến hệ thống cầu, như sự chênh lệch nhiệt độ, sụt lún địa chất theo thời gian gây nên những vết nứt thân cầu.
Thứ hai, các thành phần, chi tiết kiến trúc của cầu hư hỏng do nguyên nhân chiến tranh trước đây, như trong cuộc tổng tấn công và nổi dậy Tết Mậu Thân – 1968.
Thứ ba, thực vật xâm hại, bám vào các bề mặt cầu theo thời gian, gây nên những hư hại bề mặt thân cầu.
Thứ tư, lòng cầu được trải nhựa asphalt hiện nay thay vì làm giảm độ dốc của cầu thì đã bào mòn các lớp gạch thuộc vòm kết cấu chịu lực chính của cầu một cách nghiêm trọng (cầu Khánh Ninh).
Thứ năm, sự quá tải bởi các phương tiện lưu thông qua cầu thường xuyên gây áp lực lên khả năng chịu lực của các cầu do việc phân luồng giao thông ra vào Kinh thành chưa thực sự hợp lý.
Thứ sáu, sự gia tăng dân số (4 phường) cùng với sự thiếu ý thức của người dân làm hư hại các chi tiết và thành phần kiến trúc cầu trong quá trình sử dụng.
Vai trò kết nối giao thông của các cầu bắc qua sông Ngự Hà
1. Thực trạng giao thông
Có thể nói việc giao thông qua các cầu bắc qua sông Ngự Hà ngày nay là một vấn đề cấp bách trong lưu thông. Một mặt, lòng cầu tương đối hẹp so với độ rộng của các tuyến đường giao thông chính và chỉ đáp ứng cho các phương tiện cơ giới lưu thông tốt một chiều. Điều này gây ra xung đột, tắc nghẽn tại các điểm cầu trong việc tham gia giao thông của người dân. Mặt khác, số lượng phương tiện dự báo ngày càng tăng lên dẫn đến sự quá tải đặt lên các cầu này.
Bảng ước lượng phương tiện 4 Phường (dựa trên số liệu điều tra dân số năm 2020)
2.Kết nối giao thông đường bộ
Việc thiếu mất đi hai chiếc cầu Bác Tế và Bình Kiều trong lịch sử, đã làm tăng áp lực lưu thông và vai trò kết nối huyết mạch giao thông đường bộ hai miền Bắc-Nam trong Kinh thành chỉ thông qua 5 chiếc cầu vòm này. Cả 5 chiếc cầu này đóng một vai trò cực kỳ quan trọng trong tổng thể kiến trúc cảnh quan và kết nối giao thông hai miền Bắc-Nam cho tất cả các loại hình phương tiện lưu thông qua 5 trục giao thông chính. Bao gồm:
- Trục giao thông đường Xuân 68 gắn liền với các điểm nhấn cảnh quan, kiến trúc: Cửa Đông Ba, sông Ngự Hà, miếu Lương Y và Cửa Kẻ Trài.
- Trục giao thông đường Đinh Tiên Hoàng gắn liền với các điểm nhấn cảnh quan, kiến trúc: Cửa Thượng Tứ, hồ Tịnh Tâm, Tàng Thư Lâu và Cửa Chánh Bắc.
- Trục giao thông đường Trần Văn Kỷ gắn liền với các điểm nhấn cảnh quan, kiến trúc: Đại Nội, sông Ngự Hà và nhà thờ Giáo xứ Tây Linh.
- Trục giao thông đường Nguyễn Trãi gắn liền với các điểm nhấn cảnh quan, kiến trúc: Cửa Nhà Đồ, Đàn Xã Tắc, sông Ngự Hà và Cửa An Hòa.
- Trục giao thông đường Tôn Thất Thiệp gắn liền với các điểm nhấn cảnh quan, kiến trúc: Cửa Hữu, sông Ngự Hà và Cửa Chánh Tây.
3. Kết nối giao thông đường thủy
Việc kết nối tuyến đường thủy từ phía Đông sang phía Tây của Kinh thành thông qua hai cửa thành bằng đường thủy là Đông Thành Thủy Quan và Tây Thành Thủy Quan. Theo các tài liệu tham khảo, tuyến giao thông này trước đây được sử dụng chủ yếu cho việc vận chuyển lương thực, ngân khố và là tuyến vọng cảnh bằng đường thuyền của nhà vua trước kia. Ngày nay, tuyến đường thủy này đang được coi trọng trong việc định hướng và quy hoạch trong phát triển các dịch vụ, du lịch.
Đề xuất giải pháp bảo tồn kiến trúc và tổ chức giao thông
1. Giải pháp bảo tồn kiến trúc
Thứ nhất, đánh giá thực trạng chi tiết các cầu vòm để phân loại mức độ xuống cấp và tìm ra hướng bảo tồn phù hợp. Phân loại các yếu tố và nguyên nhân tác động đến kiến trúc và kết cấu cầu.
Thứ hai, thu thập các dữ liệu, cứ liệu lịch sử từ các nguồn khác nhau để đối sánh, lựa chọn giải pháp bảo tồn phù hợp nhất.
Thứ ba, giải pháp bảo tồn gắn với việc giữ lại nguyên trạng nhất có thể các chi tiết kiến trúc gốc ban đầu. Việc sử dụng vật liệu thay thế cho quá trình phục dựng, cải tạo và sửa chữa phải được xem xét, lựa chọn kỹ lưỡng sao cho giống với vật liệu gốc ban đầu.
Thứ tư, quá trình cải tạo, chỉnh trang và phục dựng các thành phần kiến trúc và cấu trúc cầu cần nghiên cứu các phương pháp thi công truyền thống một cách cẩn trọng và đặc biệt tuân thủ theo các quy định của Luật Di sản văn hóa Việt Nam.
Thứ năm, chỉnh trang hạ tầng kỹ thuật, trả lại vẻ mỹ quan vốn có trước đây của những chiếc cầu, bao gồm việc tháo dỡ các đường dây, đường ống thuộc hạ tầng kỹ thuật đang liên kết với thân cầu hiện nay.
2. Giải pháp tổ chức giao thông
Thứ nhất, cần hạn chế và giảm thiểu các phương tiện cơ giới có tải trọng lớn vào ra Kinh thành, nhằm giảm áp lực tải trọng lên sức chịu tải của các cầu vòm và tắc nghẽn giao thông cục bộ tại các điểm cầu.
Thứ hai, tổ chức phân luồng phương tiện lưu thông một cách hợp lý trong giao thông đối nội và đối ngoại của Kinh thành.
Thứ ba, xây dựng sơ sở hạ tầng kỹ thuật đô thị hoàn chỉnh và quy hoạch các tuyến giao thông công cộng (xe bus) hợp lý. Khuyến nghị, tuyên truyền người dân sử dụng các phương tiện giao thông công cộng, phương tiện giao thông xanh.
Đề xuất giải pháp cụ thể: Dựa trên những thông số tải trọng tính toán điển hình và thực trạng giao thông, từ đó, đề xuất một hệ thống giao thông kết nối bên trong và bên ngoài Kinh thành, tạo nên một “vòng giao thông tuần hoàn”, dựa trên 4 trục giao thông chính, bao gồm:
- Trục 1: Phương tiện giao thông vào từ Cửa Nhà Đồ – đường Nguyễn Trãi – lối ra Cửa An Hòa;
- Trục 2: Phương tiện giao thông vào từ Cửa Chánh Bắc – đường Đinh Tiên Hoàn – lối ra Cửa Thượng Tứ;
- Trục 3: Phương tiện giao thông vào từ Cửa Đông Ba – đường Mai Thúc Loan – đường Đặng Thái Thân – đường Yết Kiêu – lối ra Cửa Hữu;
- Trục 4: Phương tiện giao thông vào từ Cửa Chánh Tây – đường Thái Phiên – lối ra Cửa Kẻ Trài.
Đây là 4 trục giao thông chính 1 chiều ra vào Kinh thành kết nối bởi 8 cổng thành hiện tại. Thông qua 4 nút giao thông được giao cắt bởi 4 trục chính, sẽ thiết lập thêm các “vòng giao thông tuần hoàn thứ cấp” tiếp theo xung quanh các nút này. Đây là giải pháp sẽ giảm tải và áp lực lên hệ thống giao thông cho toàn Kinh thành nói chung và áp lực lưu thông lên hệ thống cầu vòm gạch – đá bắc qua sông Ngự Hà nói riêng, nhằm đảm bảo lưu thông liên lạc tốt hơn.
Ngày nay, cùng với sự giãn nở đa chiều trong chiến lược phát triển kinh tế và định hướng đô thị, TP đã được mở rộng và phát triển với nhiều thành tựu. Trong bối cảnh đó, những chiếc cầu được xây bằng gạch vồ và đá thanh xưa, tuy trải qua thời gian dài với những năm tháng thăng trầm cùng những biến cố lịch sử nhưng vẫn giữ những nét đặc trưng, những giá trị cao quý về mặt lịch sử, văn hóa cũng như di sản kiến trúc trong lòng đô thị.
ThS.KTS Trương Hồng Trường
(Bài đăng trên Tạp chí Kiến trúc số 08-2023)
Tài liệu tham khảo
1. Tạp chí nghiên cứu và phát triển (2002), Tuyển tập những bài nghiên cứu về triều Nguyễn, Xí nghiệp in Chuyên Dùng Thừa Thiên Huế.
2. Tuyển tập B.A.V.H-Những người bạn cố đô Huế (gồm 4 tập I, II, III, IV tái bản) (2017), Nxb Thuận Hóa.
3. Phan Thuận An (1999), Kinh thành Huế, Nxb Thuận Hóa.
4. Dương Phước Thu (2004) Huế-Tên đường phố xưa & nay, Nxb Thuận Hóa.
5. Jan Gehl (2019), Đô thị vị nhân sinh, Nxb Xây Dựng.





















































