Thông tin dự án:
- Tên nhóm tác giả: Công ty Studio Milou architecture, Paris.
- Chủ trì thiết kế: KTS. Jean Francois Milou
- Kiến trúc sư phụ trách dự án: KTS. Thomas Rouyrre, KTS. Nguyễn Thành Trung
- Địa điểm xây dựng: Phường Ghềnh Ráng, Quy Nhơn, Bình Định
- Chủ đầu tư: Hội gặp gỡ Việt Nam, chủ tịch: Giáo sư Trần Thanh Vân
- Năm thiết kế: 2009
- Năm hoàn thành xây dựng: tháng 8 năm 2013
- Diện tích khu đất / Diện tích xây dựng: 20,17ha / 3000 m2
Công trình toạ lạc tại thành phố Quy Nhơn, tỉnh Bình Định với cảnh quan xung quanh đầy quyến rũ, một khuôn viên rộng 20ha được đặt ngay giữa khung cảnh đường bờ biển dài 300m, những rặng dừa, các vách đá và dòng sông được bao quanh bởi những đồng lúa xanh. Nơi đây, cách tiếp cận thiết kế của nhóm tác giả vẫn tương đồng với rất nhiều dự án khác trong việc hoà quyện công trình đồ sộ một cách nhẹ nhàng với cảnh quan xung quanh. Khối kiến trúc bê tông ghi nâu với cột bao quanh tao nhã sẽ trở thành công trình không tuổi và hoà hợp với không gian cây xanh và màu sắc tự nhiên xung quanh. Bằng việc khống chế chiều cao công trình bằng chiều cao những rặng cây, khối kiến trúc dường như lúc ẩn lúc hiện giữa những rặng dừa.
Sàn lát đá basalt xẻ của địa phương, bề mặt nhám; tường ốp đá basalt bóng từ Bình Định, phản chiếu cảnh quan xung quanh
Triết lý đơn giản trong thiết kế – hệ toà nhà trải theo phương ngang với lối kiến trúc cổ điển – mang tinh thần của một địa điểm dành cho nghiên cứu với đặc trưng trầm tĩnh và khác biệt cho trung tâm hội nghị. Giải pháp hệ cột móng của hàng cột kết cấu cũng mang lại đặc trưng nhẹ nhàng nhất định cho cấu trúc, trong khi đó mái hiên lớn và những bậc thang rộng và thoai thoải dẫn tới khu vườn dường như sẽ gắn kết một cách êm ái toà nhà với cảnh quan xung quanh. Hệ cấu trúc mái lớn vươn phủ không gian hiện phía dưới và dọc theo hàng cột, bao trùm nội thất bên trong.
Trung tâm gồm khán phòng 300 chỗ và các phòng hội nghị ấm cúng với góc nhìn đẹp mắt hướng ra biển và đồi núi xung quanh. Đá và gỗ địa phương, đều được chế tác tại địa phương mang lại nét đẹp đồng nhất cho nội thất công trình và cảnh quan khiêm tốn xung quanh. Bên cạnh trung tâm hội nghị là yếu tố chính trong tổ hợp công trình, giai đoạn kế tiếp của dự án sẽ gồm: Nhà trình chiếu thiên văn và nhóm tác giả đang trong giai đoạn thiết kế.Công trình này sẽ được nối tiếp bởi khách sạn, nhà hàng và nhà khách ven biển cũng được sử dụng ngôn ngữ kiến trúc giống như kiến trúc cột bao quanh của trung tâm hội nghị, để tạo điều kiện nghỉ dưỡng cho các học giả cũng như tạo điều kiện tiếp cận gần hơn với hội thảo.
Toà nhà trung tâm hội nghị sẽ chuyên tổ chức các hội thảo mang tầm quốc gia và quốc tế cùng với các khoá đào tạo chuyên đề và chuyên gia, tiêu biểu cho các nhà nghiên cứu và các ứng viên tiến sĩ. Toà nhà này được mở cửa vào cuối năm 2013 sẽ là giai đoạn đầu tiên của dự án.
Toà nhà được trình chiếu thiên văn được xây dựng tại phía Tây của công trình sẽ là nơi tổ chức cho các nhóm trường học, sinh viên hào hứng nghiên cứu về các kỳ quan của vũ trụ. Phòng trưng bày triển lãm và thư viện cũng được thiết kế cùng với không gian cho hội thảo sử dụng phương pháp thực hành nghiên cứu khoa học chủ động hoặc liên kết với tổ chức ‘petits debroullards’ của Pháp. Những tiện ích này nhấn mạnh cam kết của trung tâm là để mang lại niềm đam mê nghiên cứu khoa học cho công chúng nói chung.
Trong công trình cũng thiết kế khoa kỹ thuật cung cấp khoá đào tạo chuyên ngành cấp thạc sỹ, liên kết với các trường đại học Pháp và đại học nước ngoài.
Tổ hợp khách sạn sẽ mang lại các tiện ích đạt tiêu chuẩn quốc tế cao nhất và do một công ty tư nhân điều hành, được thi công ngay tại mặt công trình hướng biển. Tổ hợp sẽ phục vụ các vị khách tới Trung tâm theo điều khoản của hợp đồng liên kết, cùng lúc đó cũng được hưởng lợi từ tiềm năng du lịch mạnh của vùng và tạo điều kiện cho Trung tâm được biết đến rộng rãi hơn trong cộng đồng quốc gia và quốc tế.
Ngay cạnh công trình, các ngư dân địa phương vẫn tiếp tục công việc hàng ngày của mình như: Hội công giáo vẫn chăm sóc các bệnh nhân phong từ năm 1930 và ngày nay đã trở thành địa danh di sản nổi bật của thành phố Quy Nhơn. Con đường dài lát đá do Hội gây quỹ chạy dọc theo bãi biển sẽ là lối đi chung cho hội và chung tâm Hội nghị, mang tới một lối đi thanh bình. Dự án cũng tìm cách để hợp nhất với cộng đồng mà không can thiệt trực quan hoặc nhân quan tới hoạt động thiết yếu và đang diễn ra ở nơi đây.
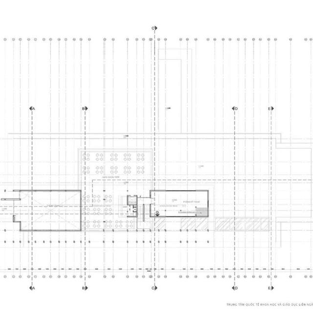
Mặt bằng tổng thể
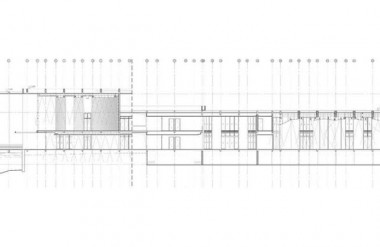
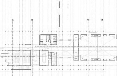
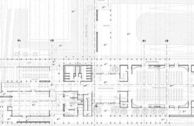
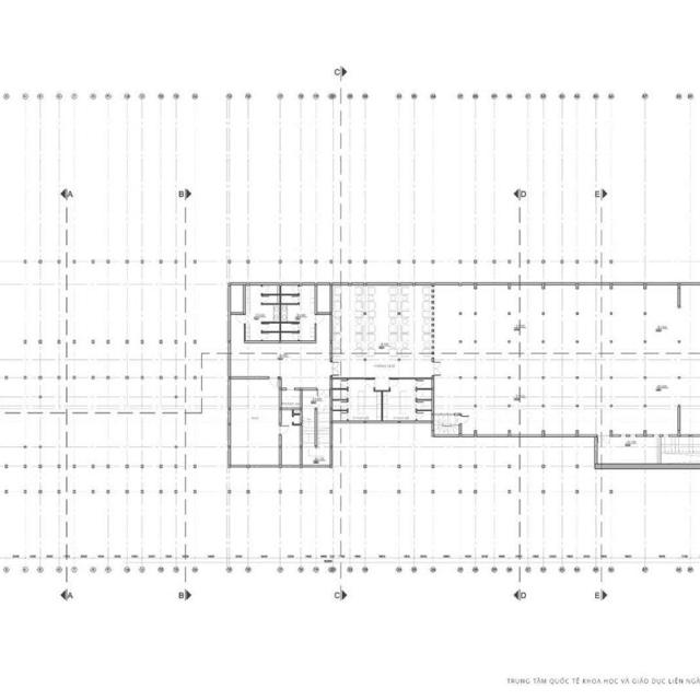
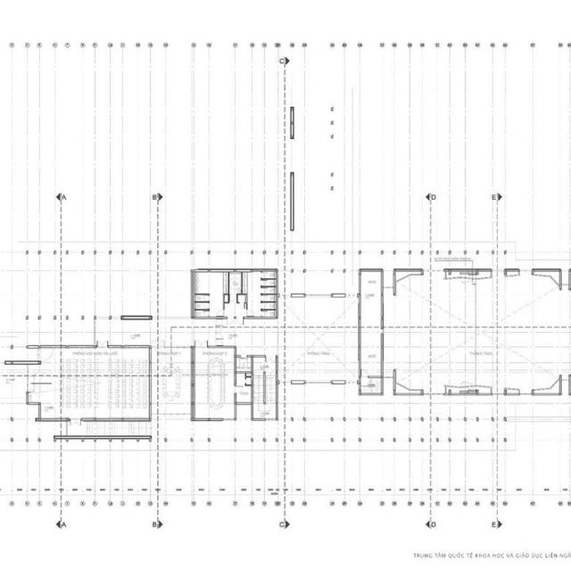
Một số bản vẽ khác của công trình:
Biên tập: Quỳnh Nga – Kienviet.net




































