Một ngôi nhà tưởng chừng như đơn giản nhưng thực ra lại vô cùng tinh tế, mỗi chi tiết đều có giá trị của nó. căn nhà như được ẩn mình hoàn hảo giữa vườn cây nhờ một lớp nguỵ trang bao bọc hoàn hảo.
Một bức màn được tạo bằng những ô gốm tráng men màu xanh lá bao bọc ngôi nhà ở Barcelona, giúp nó hoà hợp và ẩn mình giữa khu vườn bao quanh. TR House đã được thiết kế bởi văn phòng kiến trúc địa phương PMMT cho một tài sản mang tính lịch sử hiện còn tồn tại, tài sản này trước đây thuộc lãnh sự quán Ấn Độ ở Barcelona nhưng nay thuộc quyền sở hữu bởi một gia đình.

Kiến trúc ba tầng này được đặt trên một mảnh đất nghiêng và một phần nằm bên dưới mặt đất. Khu để ở được quay về phía đông và nằm ra phía sau ngôi nhà để đảm bảo sự riêng tư một cách tối đa.

Phần lớn bề mặt phía trước và sau được phủ bởi những tấm màu hạt dẻ, cẩn thận tạo những vị trí mở để ngắm được nhiều cảnh nhưng cũng đảm bảo riêng tư cho người ở. Nhưng các mặt còn lại của nó được bọc bởi một bề mặt bán rắn gồm gạch men cố định vào một lưới thép không gỉ.

Màn chắn mang lại bóng mát và sự riêng tư khỏi không gian bên ngoài, cũng giúp nguỵ trang căn nhà giữa nền xanh của vườn cây.
Kiến trúc sư Alex Herráez cho biết: “ Mặt bên ngoài là một sự phản ánh của nhu cầu chức năng bên trong”

Ông nói: “Với bức màn gốm như vậy, chúng tôi đã giải quyết được bốn điều mà trong kiến trúc thường được giải quyết theo những cách riêng biệt: mặt tiền, giàn dây leo, các bức tường rèm và mái nhà”
“Trong một loạt các màu xanh, chúng tôi đã làm việc với bốn tông màu khác nhau để có được những sắc thái tương tự bốn mùa trong năm, tạo cảm giác hợp nhất”

Do nằm trên vị trí dốc và sự hoà nhập của ngôi nhà vào cảnh quan phía dưới mặt đất, lối vào các tầng cũng khác nhau.

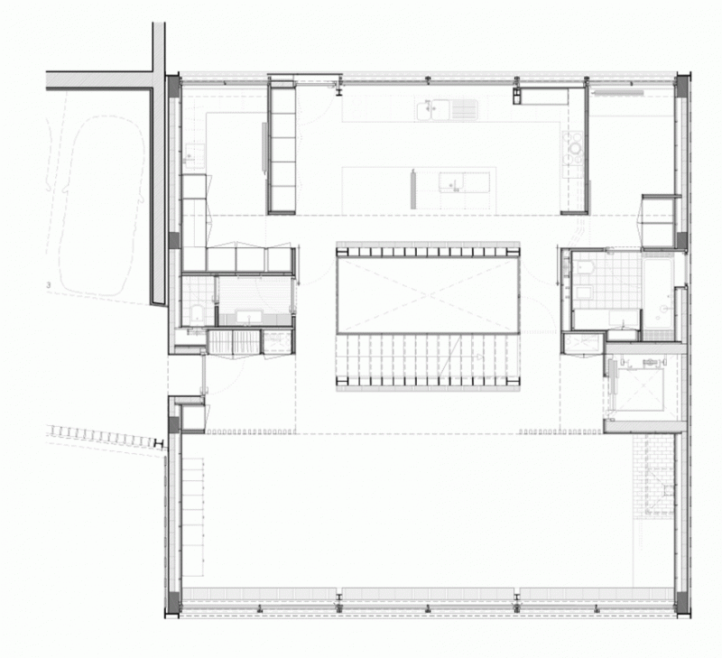
Một lối đi uốn lượn xuống nơi để xe ở tầng thấp nhất, nơi các khu vực sinh sống chính mở vào một khu nghỉ ngơi tách biệt phía sau toà nhà. Lối vào chính được đặt ở phía trên, có một con đường đi qua mái nhà để xe để vào.

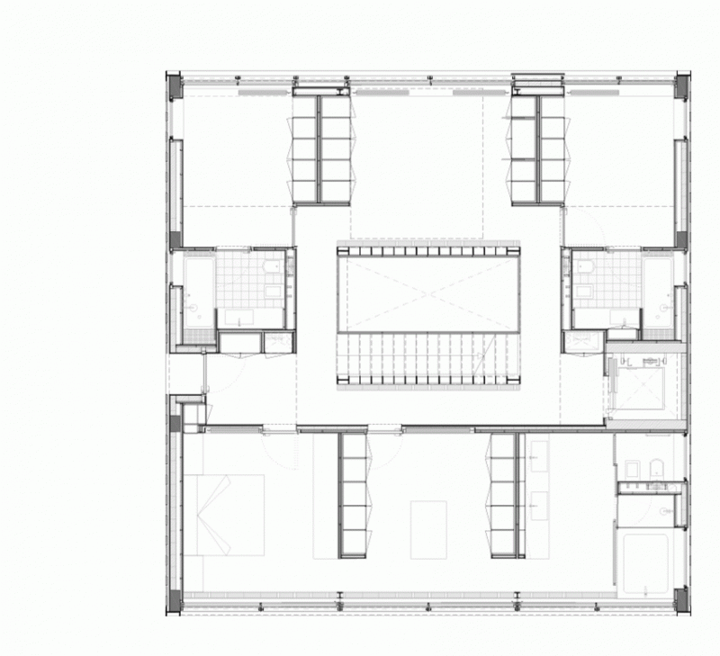
Các phòng được bố trí trên cả hai phía so với một trục nằm ngang của toà nhà từ lối vào. Chính giữa ngôi nhà là một sân trong mở trồng một cặp cây bạch dương. Một bên của sân trong cầu thang, khu vực này được bọc bằng kính nên ánh sáng luôn được chiếu đủ.

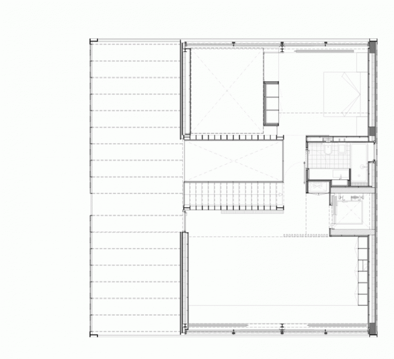
Phòng ngủ được bố trí xung quanh tầng trung tâm, tầng trên cùng có một phòng ngủ cho khách và một văn phòng thông ra sân thượng được che chủ bởi tấm giàn leo. Bóng của tấm giàn leo tạo nên những chấm lốm đốm trên sàn sân thượng và tạo thành khung hình để ngắm những ngọn cây ở hai đầu.

Khung cảnh phía sau cùng của sân thượng đằng sau nhà, đất dốc xuống về phía một nhánh sông tại ranh giới của mảnh đất. Một chuỗi các bề mặt dốc được tạo từ các tấm màu hạt dẻ giống như mặt tiền căn nhà được mở rộng tới khu vực vui chơi ở điểm thấp nhất.









Theo Trung Duong/designs




















