Căn hộ dành cho đôi vợ chồng trẻ và một bé gái được thiết kế với tiêu chí nhẹ nhàng, gọn gàng, vừa đủ công năng, nhiều ánh sáng. Đây là căn hộ đầu tiên của vợ chồng gia chủ, được bàn giao thô.
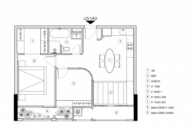
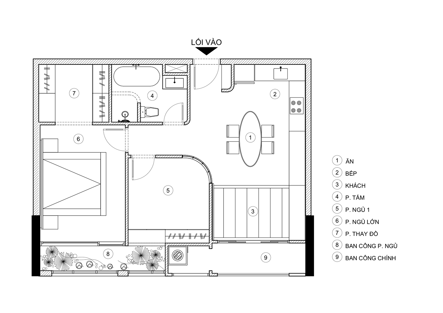
Với diện tích 70 m2, căn hộ được chia thành phòng khách, bếp, phòng ăn, một toilet đủ rộng để bố trí khu vực tắm đứng và bồn tắm, một phòng ngủ nhỏ cho con gái con gái nhỏ, một phòng ngủ master cho vợ chồng cùng một phòng thay đồ.
Vì gia chủ mong muốn tổ ấm gần gũi với thiên nhiên, các kiến trúc sư chừa một khoảng trống nhỏ để tạo thành ban công giả cho hai phòng ngủ. Ban công giả này như một lớp đệm, tách các phòng ngủ khỏi sự nhộn nhịp bên ngoài khung cửa sổ. Nó không ảnh hưởng nhiều đến diện tích sử dụng mà giúp căn hộ có thêm chỗ trồng cây cối và thoáng đãng hơn. Gia chủ cũng cảm thấy thư giãn khi từ phòng ngủ có thể nhìn ra không gian xanh.
Để giảm góc cạnh, kiến trúc sư đưa vào công trình những đường cong. Phòng ngủ nhỏ có vách kính cong, vừa tạo điểm nhấn cho không gian vừa đưa ánh sáng vào sâu bên trong.
Với tiêu chí vừa đủ, nội thất nhà được tiết chế cả về đường nét, chất liệu lẫn màu sắc. Trên nền trắng, màu sắc trung tính của vật liệu bê tông, gỗ, đá mài và đá tự nhiên tạo nên cảm giác rộng rãi, sáng sủa và nhẹ nhàng.
Một số hình ảnh khác của công trình:
Bản vẽ công trình:
Theo Minh Trang/ VNExpress
Ảnh: Quang Đàm

































