Fujiwaramuro Architects đã thiết kế ngôi nhà này cho một gia đình ở Muko, Kyoto, Nhật Bản.
Ngôi nhà được thiết kế dưới hình dạng của những nan quạt với tính năng chính như là những lam thông gió lớn; tạo ra sự riêng tư và đồng thời cung cấp ánh sáng trong suốt các thời điểm trong ngày.
Ngoại thất
Chuyển động của mặt trời có thể cảm nhận được trong các thời điểm mùa trong năm. Ánh sáng đi sâu và xuyên suốt vào nội thất bên trong ngôi nhà tạo ra nét độc đáo, thú vị và sinh động cho không gian.
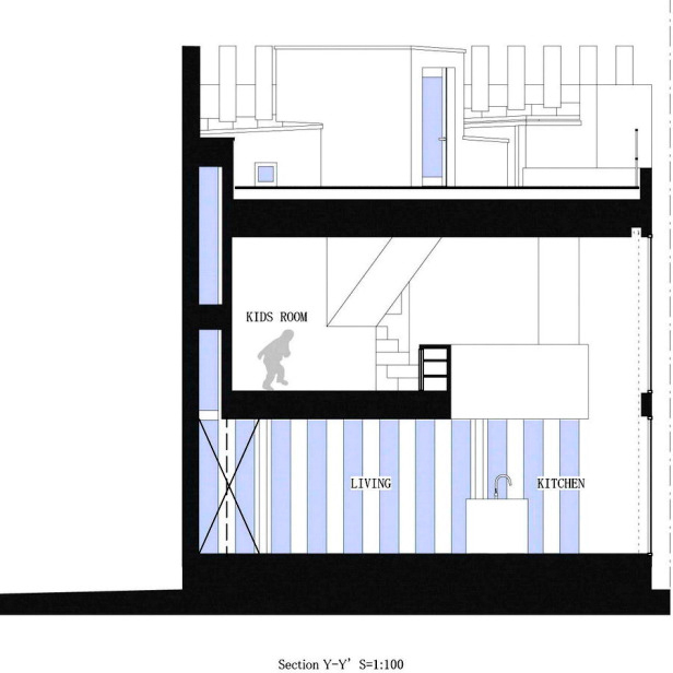
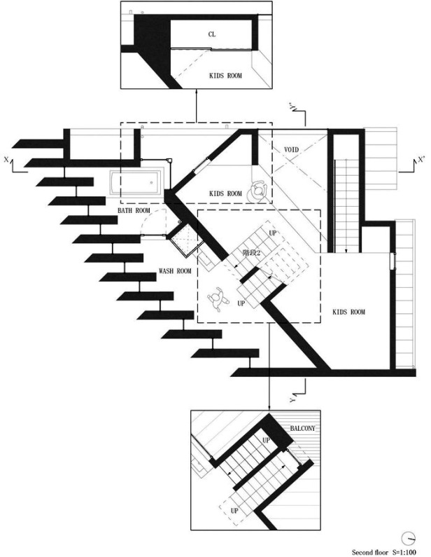
Mặt bằng, mặt đứng và mặt cắt
Thông tin dự án:
Thiết kế : Fujiwaramuro Architects
Diện tích : 100,29 m2
Hình ảnh : Toshiyuki Yano
Tổng hợp: Kiến trúc Nhà ngói/theo archdaily


































