THÔNG TIN CÔNG TRÌNH
- Tên công trình: Sky House
- Tư vấn thiết kế: KTS. Nguyễn Hoàng Mạnh và cộng sự
- Địa điểm: Tp. Thủ Đức
- Chức năng: Kiến trúc nhà ở
- Năm hoàn thành: 2019
Công trình đạt Giải Bạc Giải thưởng kiến trúc quốc gia 2022 – 2023, hạng mục Kiến trúc nhà ở.
Chi tiết các công trình đạt giải xem tại: https://www.tapchikientruc.com.vn/tin-tuc/ket-qua-giai-thuong-kien-truc-quoc-gia-2022-2023.html
Không nằm ngoài bối cảnh chật chột đông đúc nổi tiếng của Sài Gòn, khu đất xây dựng của Sky House nằm lọt thỏm giữa “thung lũng” các tòa nhà cao tầng san sát nhau, đưa ra một đề bài khó cho việc thiết kế với mục tiêu tạo nên một công trình ”mở” và “thở”…
Sài Gòn là một thành phố có mật độ công trình, xe cộ và con người dày đặc bậc nhất Việt Nam. Theo cùng đó là sự tắc nghẽn của giao thông và hạ tầng đô thị nhưng lại thiếu không gian cho những mảng xanh, nơi con người có thể tĩnh tâm và ngồi lại với thiên nhiên sau những giờ làm việc căng thẳng.
Không nằm ngoài bối cảnh trên, khu đất xây dựng của Sky House cũng nằm lọt thỏm giữa “thung lũng” các tòa nhà cao tầng san sát nhau, đưa ra một đề bài khó cho việc thiết kế với mục tiêu tạo nên một công trình ”mở” và “thở”.
Các KTS đã “cắt đôi” ngôi nhà để dành một nửa nắng, gió, mặt nước, cây xanh hay chỉ đơn giản là những khoảng trống, nửa còn lại sẽ dành cho sinh hoạt gia đình với các tiện ích vừa đủ ở mức tối thiểu.
Với mong muốn đó, kết hợp cùng cá tính của gia chủ là người ưa thích sự tĩnh lặng – nhóm thiết kế đã đưa ra một định hướng kiến trúc rõ ràng, đó là mang lại sự kết nối cao giữa con người với con người và giữa con người với thiên nhiên theo phương ngang và phương đứng.
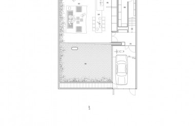
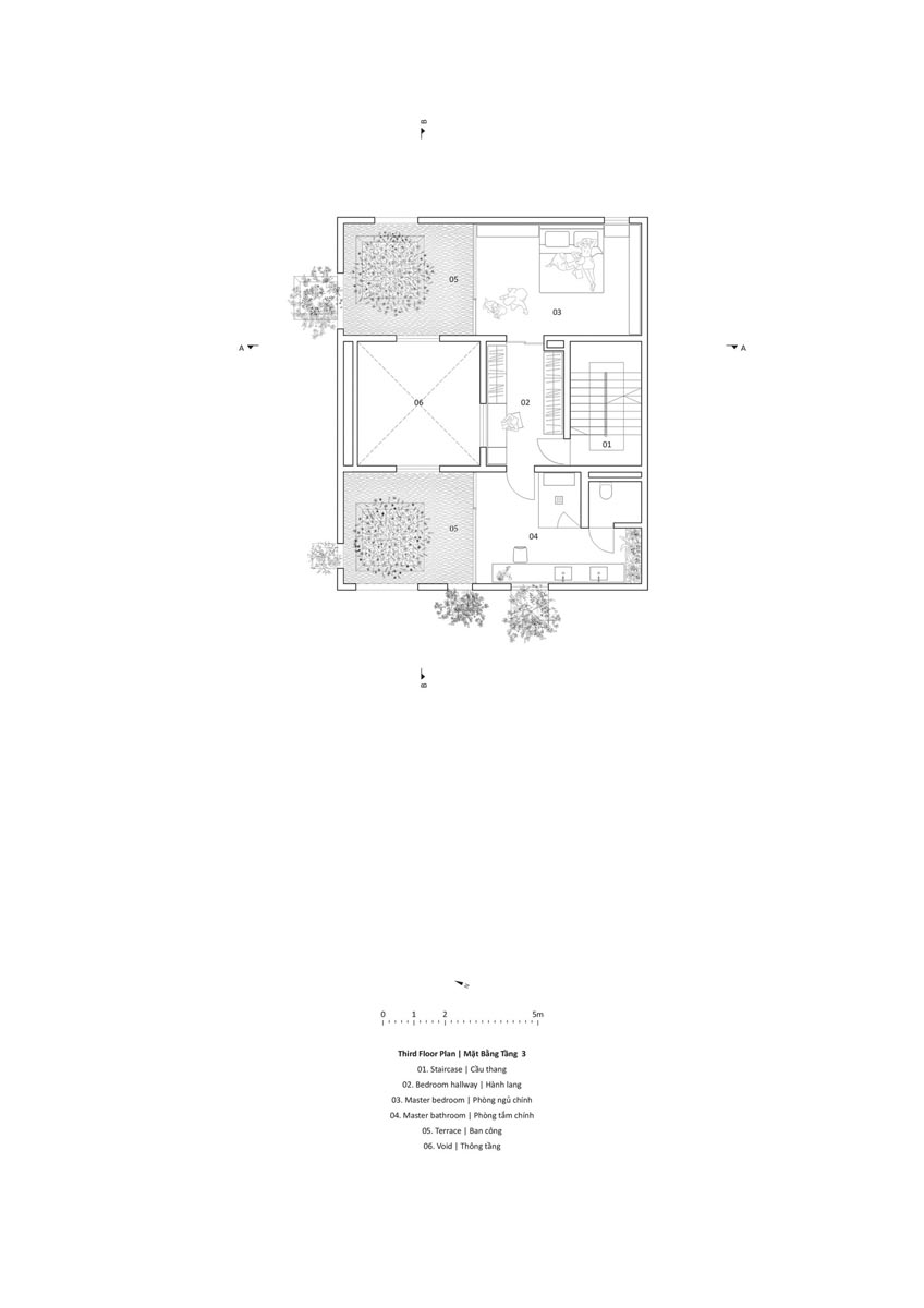
Giải pháp là tạo những khoảng trống lớn thông với nhau, để từ đó thiên nhiên có thể luồn lách vào tận từng ngóc ngách của không gian sống. Với diện tích khu đất không đổi, thay vì vẽ nên những căn phòng rộng quá khổ so với nhu cầu sử dụng, chúng tôi đã “cắt đôi” ngôi nhà để dành một nửa nắng, gió, mặt nước, cây xanh hay chỉ đơn giản là những khoảng trống, nửa còn lại sẽ dành cho sinh hoạt gia đình với các tiện ích vừa đủ ở mức tối thiểu.
Sky house được thiết kế với sự kết nối theo chiều dọc giữa ngôi nhà và bầu trời – nên có thể cảm nhận được sự thay đổi của thời gian cũng như thời tiết trong ngày một cách rất trực tiếp.
Công trình kiến trúc như một cơ thể sống: thay vì mở ra bốn phía xung quanh, chúng tôi tạo ra sự kết nối theo chiều dọc giữa ngôi nhà và bầu trời. Cách tiếp cận đó đã tạo điều kiện để ngôi nhà có thể đón nhận tự nhiên một cách gián tiếp, và từ đó ta cảm nhận được sự thay đổi của thời tiết, của giờ trong ngày một cách rất trực tiếp.
Kiến trúc lúc này không còn bị phụ thuộc bởi bối cảnh xung quanh nữa, mà đã tự tạo ra cho mình cảnh quan riêng ngay trong nội tại. Liên kết giữa con người và tự nhiên bên ngoài được thể hiện qua nhiều cách, đồng thời tăng thêm kết nối phương đứng giữa những không gian sử dụng thông qua các ô trống. Các khoảng trống đó nay đã trở thành chủ thể chính của ngôi nhà, là nơi cha mẹ và con cái có thể nhìn thấy nhau ở mọi ngóc ngách.
Đây là cách mà kiến trúc có thể chữa lành tâm hồn con người bằng sự hòa hợp với thiên nhiên. Như lời danh họa Vangogh đã từng nói: “Nếu bạn thật sự yêu thiên nhiên, bạn sẽ thấy cái đẹp ở mọi nơi”.
Xem thêm về công trình
Đinh Hằng – TCKT.VN
© Tạp chí Kiến trúc










































































