Tóm tắt
Cơ Tu được biết đến là dân tộc sinh sống lâu đời tại khu vực vùng núi tỉnh Quảng Nam, thành phố (TP) Huế và một phần ở TP Đà Nẵng. Gươl, ngôi nhà chung của làng Cơ Tu, có đặc điểm kiến trúc độc đáo, đặc trưng văn hóa của dân tộc này. Bằng phương pháp khảo sát thực địa, quan sát và chụp ảnh khoa học, đo vẽ hiện trạng kiến trúc, và phỏng vấn già làng ở 14 thôn làng, bài viết đã làm cho thấy đặc điểm kiến trúc nhà Gươl và những biến đổi của ngôi nhà trong bối cảnh hiện nay. Những biến đổi ấy có thể thấy ở việc thay đổi những vật liệu mới, hiện đại, ở chức năng sinh hoạt, ở hình thức kiến trúc… Trên cơ sở đó, một số đề xuất bảo tồn và phát huy giá trị kiến trúc nhà Gươl được đưa ra.
Đặt vấn đề
Trong giai đoạn hiện nay, ảnh hưởng đô thị hóa, hiện đại hóa đã dẫn đến nhiều sự biến đổi và biến dạng các kiến trúc truyền thống của đồng bào dân tộc Cơ Tu. Các dự án liên quan đến thủy điện, nông thôn mới, nâng cấp hệ thống giao thông, sát nhập các thôn xã… buộc nhiều làng dân tộc Cơ Tu phải di chuyển tái định cư ở vị trí mới. Tuy nhiên, các làng Cơ Tu ở tỉnh Quảng Nam hầu hết đều cố gắng xây dựng ngôi nhà cộng đồng truyền thống (nhà Gươl) của mình như là niềm tự hào của dân làng. Trong phạm vi bài viết này, nhóm tác giả tập trung nghiên cứu dân tộc Cơ Tu về đặc điểm kiến trúc nhà cộng đồng, những biến đổi trong bối cạnh hiện tại và đề xuất gìn giữ giá trị của thể loại kiến trúc này. Qua đó góp một phần nhỏ vào nghiên cứu toàn diện về kiến trúc, văn hóa và định hướng bảo tồn các dân tộc thiểu số của Việt Nam.
Tổng quan dân tộc Cơ Tu
Người Cơ Tu thuộc nhóm ngôn ngữ Môn-Khmer, ngữ hệ Nam Á. Theo cách giải thích của người Cơ Tu thì từ “tu” nghĩa là ngọn, nguồn; danh từ “Cơ tu” nghĩa là người sống ở đầu nguồn, ở trên cao ([1], [6], và [10]). Có lẽ vì vậy mà họ thường cư trú ở vùng cao, núi non hiểm trở. Dân tộc Cơ Tu tính đến tháng 4/2019 có 74.173 (trong đó có 37.096 nam, 37.77 nữ) [7, tr. 44]. Riêng ở Quảng Nam có 55.091 người, Đà Nẵng có 1.786 người và thành phố Huế có 16.719. Hiện tại, người Cơ Tu đang sinh sống tại Nam Giang, Đông Giang, Tây Giang (tỉnh Quảng Nam), Hòa Vang (TP. Đà Nẵng), A Lưới và Nam Đông (TP. Huế) .
Đặc điểm kiến trúc nhà Gươl dân tộc Cơ Tu
Đặc điểm tổng thể làng
Người Cơ Tu sống thành từng làng còn gọi là Vel hoặc Vil. Mỗi làng gồm khoảng vài chục ngôi nhà nhỏ bao quanh một ngôi nhà cộng đồng còn gọi là nhà Gươl . Ngôi nhà đó đóng vai trò là trung tâm hành chính, văn hóa và xã hội của làng. Cấu trúc làng Cơ Tu truyền thống điển hình thường có dạng hình dạng hình tròn, hình bầu dục, hình đa giác, hình vành khuyên, hoặc hình móng ngựa mà trung tâm là nhà Gươl ([4, tr. 351], [9, tr. 518], [3, tr. 38], và [11, tr. 18]). Cấu trúc đó thể hiện cho sự đồng lòng thống nhất của mọi thành viên trong làng. Tổng thể ngôi làng dân tộc Cơ Tu trước đây thường có 4 lớp (từ ngoài vào trong): Kho rẫy; hàng rào; nhà ở; và ngôi nhà Gươl. Tuy nhiên, trong bối cảnh hiện tại, hình dạng cấu trúc làng cũng có sự biến đổi tùy thuộc vào địa hình, lối tiếp cận vào làng, thôn.
Qua khảo sát tổng thể 14 ngôi làng dân tộc Cơ Tu tại TP Huế và Quảng Nam, hầu hết ngôi nhà Gươl được xây dựng ở vị trí trung tâm của làng với vai trò là trọng tâm, điểm nhấn cho làng. Hình thể tổng thể của làng có thể có các trường hợp sau:
(2) Các ngôi nhà ở được xây dựng hai bên lối vào làng và ngôi nhà Gươl tọa lạc ở vị trí cao nhất (ví dụ thôn Gừng và Ka Nơm, thị trấn Prao);
(3) Lối vào làng ở giữa, các nhà ở được xây dựng 2 bên và ngôi nhà Gươl nằm giữa và ở một bên dãy của thôn làng (ví dụ thôn A Dinh 2, A Dinh 3, Tà Vạc và A Rec);
(4) Hình thái tổng thể làng không rõ nhưng ngôi nhà Gươl thì nằm trung tâm.
Đặc điểm kiến trúc nhà Gươl
Gươl, ngôi nhà chung của làng, được xem là biểu tượng của làng Cơ Tu. Ngôi nhà đóng vai trò quan trọng trong đời sống văn hóa của dân làng. Đây là ngôi nhà to nhất, đẹp nhất, và là ngôi nhà sở hữu chung của làng. Vai trò của nhà Gươl cũng giống như đình làng của người Việt hay nhà rông của các dân tộc ở Tây Nguyên. Nhà Gươl thường được dựng ở trung tâm làng, có vị trí cao ráo và là điểm quy tụ của các gia đình dân làng.
Nhà Gươl được phân loại theo nhiều cách khác nhau. Dựa vào đặc điểm, kích thước, nhà Gươl có thể được phân thành 5 loại ([2] và [3]):
(1) Gươl apoóc: Loại nhà Gươl nhỏ nhất, lợp nứa bổ đôi, nhà không có điêu khắc, phần nhô ra ở 2 đầu nóc nhà (khau cút) tròn và phẳng;
(2) Gươl ađhú: Vách bằng phên nứa, mái lợp tranh hoặc lá cọ, điêu khắc trang trí ít, phần nhô ra ở 2 đầu nóc nhà hình trăng non và có đầu cuộn vào;
(3) Gươl azêê: Sàn ván và vách ván dựng dọc tấm, mái lợp cỏ tranh hoặc lá mây, lá cọ, có điêu khắc trang trí;
(4) Gươl ganing lalua: Ván vách gỗ dựng ngang và để hở phần trên, nhiều điêu khắc trang trí; và
(5) Gươl ganing cơrnooch: Loại nhà công phu đẹp nhất, trang trí điêu khắc phong phú, cả ở trên nóc và khau cút.
Nhóm tác giả Nguyễn Hữu Thông, qua hồi ức của một già làng ở Đông Giang đã liệt kê 3 loại Gươl khác nhau [6, tr. 107]:
(1) Gươl đuôn: Loại nhà Gươl tròn, hình nón úp, là dạng phổ biến ở vùng thấp;
(2) Gươl chờ ri mốc: Loại nhà Gươl có mái tròn 2 đầu, là dạng phổ biến ở vùng giữa; và
(3) Gươl patăh: Nhà Gươl có sàn bằng gỗ, là dạng phổ biến ở vùng cao.
Ngoài ra, có thể chia nhà Gươl thành 2 loại dựa trên hình khối bên ngoài, đặc biệt là mái: Gươl mái tròn và Gươl hình thang hai đầu hồi tròn (mái hình bầu dục). Kiểu nhà Gươl hình thang này có kiểu mái mai rùa, là dạng kiến trúc đặc trưng của cư dân ngôn ngữ Môn Khmer ở Đông Nam Á. Đây là kiểu nhà Gươl có sự chuyển biến, kế thừa hợp lý từ nhà sàn dài (nhiều thế hệ gia đình) thành nhà sàn nhỏ, rồi chuyển sang nhà sàn lớn là nhà Gươl. Từ dạng nhà này cũng có biến thể thành nhà Gươl hình chữ nhật, 4 mái như nhà Gươl thôn Chờ Nét, xã ATing, huyện Đông Giang, tỉnh Quảng Nam.
Có thể thấy 14 ngôi nhà Gươl được khảo sát có dạng Gươl chờ ri mốc phổ biến với mái tròn ở 2 đầu hồi. Dựa vào kết quả khảo sát, đặc điểm kiến trúc nhà Gươl được tổng hợp và phân tích như dưới đây (bảng 1).
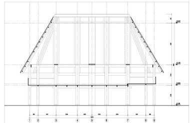
- Kiến trúc mặt đứng: Các ngôi nhà được khảo sát có tính đăng đối, đối xứng qua trục giữa và có chiều cao trung bình so với nền là 7,9m. Sàn nhà cao trung bình so với nền 1,862m. Điều đặc biệt là ngôi nhà Gươl ở thôn Pơr’ning có sàn thấp nhất (1,363m) nhưng là có chiều cao toàn bộ lớn nhất (9,133m). Ngược lại, ngôi nhà Gươl thôn Gừng lại có sàn cao nhất (2,770m) nhưng chiều cao toàn bộ lại thấp nhất (6,339m). Hầu hết các nhà Gươl ở tỉnh Quảng Nam đều cao hơn 8m (trừ nhà Gươl ở thôn Gừng) trong khi các nhà Gươl ở thành phố Huế có chiều cao dưới 7m. Chiều cao mái khá lớn, từ 1/2 đến 2/3 chiều cao toàn bộ công trình. Các ngôi nhà Gươl ở thành phố Huế thường nhỏ và có chiều cao mái khoảng bằng 1/2 chiều cao toàn bộ nhà, trong khi các nhà ở tỉnh Quảng Nam có độ cao mái lớn hơn. Lối vào nhà Gươl thông thường ngay chính giữa mặt đứng bằng các bậc thang làm bằng gỗ. Tùy vào từng làng mà có thể là 1 lối lên hoặc 2 lối lên. Một số trường hợp khác có lối đi bên hông như thôn Tà Vạc.
- Mặt bằng và tổ chức công năng: Mặt bằng công trình có tính đối xứng, điển hình nhà Gươl của dân tộc Cơ Tu . Hầu hết các ngôi nhà được khảo sát có 13 cột (gồm 1 cột giữa, 6 cột chính và 6 cột biên). Tuy nhiên, cũng có trường hợp không có cột giữa như ở thôn Tà Vạc, hoặc có số cột chính nhiều hơn (thôn Pơr‘ning và Arớh) . Trường hợp thôn Pơr‘ning, ngôi nhà có 3 cột giữa, 10 cột chính và 10 cột biên. Đối với thôn Tà Vạc, cột giữa không có vì chịu ảnh hưởng ngôi nhà của bên Lào (do nguồn gốc dân trong thôn xa xưa từ bên Lào). Ngoài ra, có 4 trường hợp nhà Gươl được khảo sát có mặt bằng 2 bên không uốn cong tròn mà vát cạnh.
Mặt bằng nhà thường có 2 bếp ở 2 bên đối xứng qua cột giữa để dân làng, khách ngồi quây quần khi có dịp lễ hội. Tuy nhiên, trong bối cảnh hiện tại, một số nhà bỏ bếp để tránh hỏa hoạn đồng thời tạo không gian làm bục khi tổ chức hội họp như trường hợp thôn Gừng và thôn Arớh. Qua phỏng vấn, không gian ngôi nhà chủ yếu sử dụng nghỉ ngơi, thư giãn, lễ hội, họp thôn và có thể sử dụng phục vụ du lịch (thôn Dỗi và thôn Dho Rong) .
- Kết cấu và vật liệu xây dựng: dù là dạng nào thì kiến trúc nhà Gươl là nhà sàn và có khung kết cấu cơ bản giống nhau. Khung kết cấu nhà Gươl khá đặc biệt so với các thể loại nhà cộng đồng ở các dân tộc khác. Cột giữa (còn gọi là cột Cái, tiếng Cơ Tu gọi là D’rưng măng) đóng vai trò chịu lực gần như toàn bộ khung cấu kiện mái. Toàn bộ tải trọng mái được đỡ bởi các đòn tay. Đòn tay được gác lên đòn dông trên đỉnh mái và các xà dầm ở dưới. Đòn dông được đỡ bởi cột giữa. Tải trọng của các băng, dầm được đỡ bởi các cột cái, cột chính và cột biên. Toàn bộ các cấu kiện ngôi nhà Gươl được liên kết chủ yếu bằng mộng và dây buộc mà không hề sử dụng bất kỳ kim loại nào, tạo thành một hệ khung rất vững chắc . Phía sau cột giữa, sát mép sau và ngay dưới mái, có thể có một giàn nhỏ chạy dọc ngôi nhà Gươl, là nơi để các đồ tế lễ như chiêng, ché, thanh la…
Mặt cắt dọc nhà Gươl thôn Arớh (Nguồn: Tác giả) Mặt cắt ngang nhà Gươl thôn Arớh (Nguồn: Tác giả) Vật liệu xây dựng nhà Gươl đều là vật liệu địa phương, khai thác tại chỗ. Khung kết cấu đều bằng gỗ và khai thác tại rừng. Tùy vào vai trò từng cấu kiện mà vật liệu gỗ có thể khác nhau. Thông thường, hệ thống cột, dầm, xà, đòn tay, đòn mái đều được làm bằng gỗ. Riêng cột giữa, dân làng thường chọn những gỗ quý, chắc để dựng như gỗ dỗi, sến. Sàn nhà thường được lát bằng tre đan lại. Tuy nhiên, vẫn có một số trường hợp được làm bằng ván gỗ (nhà Gươl ở thôn Pơr‘ning, Dho Rong, và Tà Vạc). Hầu hết các nhà có vách bao quanh dạng lan can, không xây kín. Các vách này chủ yếu bằng các ván gỗ ghép lại trừ trường hợp ở thôn 3 A Ka, vách làm bằng tấm đan từ lá lồ ô. Tùy vào tài nguyên sẵn có ở địa phương mà mái các nhà Gươl có thể lợp bằng lá mây, lá nón, lá tranh, lá cọ. Riêng trường hợp ở thôn Gừng, mái được lợp bằng tôn.
- Nghệ thuật trang trí điêu khắc: Mô típ trang trí ở nhà Gươl khá đa dạng và tùy thuộc vào từng làng. Thông thường, các mô típ trang trí tập trung chủ yếu ở các băng, xà, cột cái, cầu thang… Ở băng ngang mặt đứng chính thường có những chạm khắc, trang trí về các con vật (trâu, kỳ đà, hổ, voi…), con người hoặc các tranh vẽ sinh hoạt .
Vách che mặt chính và dầm có dạng đặc rỗng theo các hình kỷ hà như hình thoi, hình vuông, chữ nhật. Ở dầm, đà được dân làng chạm trổ các hình ảnh quen thuộc của dân làng như thể hiện hình ảnh sinh hoạt, đi săn, ăn uống, ca hát, nhảy múa, con vật… Một số làng Cơ Tu tập trung trang trí ở cột giữa rất công phu. Cột giữa được tạo hình dưới tròn trên vuông và có nhưng điêu khắc mang nhiều hình tượng đặc trưng của dân tộc Cơ Tu như hình chiếc trống, lá dớn, điệu nhảy “tung tung – da dá” qua hình ảnh con chim (hình 11). Đặc biệt, ở một số Gươl, cột giữa được gắn bộ phận Gương đối xứng 2 bên, trên Gương trang trí hình chim, gà, kỳ đà, tạo hình mô phỏng giống cột tế (Xơnur) trong nghi lễ đâm trâu. Ở đỉnh mái cũng luôn được các nghệ nhân Cơ Tu trang trí với hình ảnh con gà hay con chim T’ring ở 2 đầu nóc mái. Hình tượng này như là biểu tượng của người Cơ Tu thể hiện sự báo thức, chăm chỉ làm việc hay đoàn kết trong dân làng.
Những biến đổi và một số đề xuất bảo tồn và phát huy giá trị kiến trúc nhà Gươl dân tộc Cơ Tu
Trong bối cảnh hiện nay, các ngôi làng dân tộc Cơ Tu và ngôi nhà Gươl đang dần biến đổi trước ảnh hưởng của đô thị hóa, hiện đại hóa. Tổng thể ngôi làng hầu hết không còn bố cục như truyền thống mà cơ bản được dựa vào vị trí định cư mới. Tuy nhiên, ngôi nhà Gươl vẫn được xây dựng ở vị trí trung tâm của làng. Đối với kiến trúc nhà Gươl, một số vật liệu hiện đại như bê tông, sắt thép, tôn… cũng đâu đó hiện diện như ở các xã tại huyện Nam Đông, TP Huế hay ở thôn Gừng, tỉnh Quảng Nam. Những biến đổi về vật liệu này nguyên nhân do tài nguyên gỗ ngày càng khan hiếm.
Sàn nhà Gươl trước đây cao khoảng 0,9m – 1,2m nhằm mục đích tránh kẻ thù có thể ẩn nấp ở dưới. Tuy nhiên, trong bối cảnh hiện nay, sàn các nhà Gươl đều được nâng cao để tận dụng không gian phía dưới để đồ, để xe và các chức năng khác. Việc nâng sàn tuy tạo sự thích nghi về công năng sử dụng nhưng cũng có ảnh hưởng đến tỷ lệ, thẩm mỹ kiến trúc của ngôi nhà. Một số ngôi nhà cũng dần dần không làm bếp trong nhà để tránh hỏa hoạn cũng như tạo không gian cho những chức năng khác như hội họp, làm sân khấu khi có sự kiện… Ở phần nền, trước đây cột các ngôi nhà Gươl được chôn trực tiếp xuống đất, nhưng đa số các ngôi nhà khảo sát đều có cột đặt trên đá tảng hoặc trên nền xi măng nhằm mục đích chống mối mọt.
Với những biến đổi và thực trạng kiến trúc như đề cập ở trên, một số đề xuất cho việc bảo tồn và phát huy giá trị kiến trúc nhà Gươl như sau:
- Cần có nghiên cứu thống kê và đánh giá thực trạng kiến trúc các ngôi nhà Gươl trên địa bàn tỉnh Quảng Nam, TP Huế và TP Đà Nẵng. Từ đó, có thể phân loại và lập các hồ sơ thông tin đầy đủ các ngôi nhà này. Đây là cơ sở để có những giải pháp, ứng xử phù hợp đối với từng trường hợp trong việc gìn giữ và bảo tồn;
- Cần có những chính sách từ cơ quan, chính quyền về hỗ trợ, tạo điều kiện cho dân làng có thể gìn giữ ngôi nhà Gươl, ngôi nhà chung đặc trưng của dân tộc Cơ Tu như về tài chính, nguồn tài nguyên địa phương (đặc biệt là gỗ), các hoạt động hàng năm mang đậm bản sắc dân tộc, các lễ hội cũng như dịch vụ du lịch sinh thái, bản địa;
- Nâng cao ý thức tự hào của dân làng trong việc bảo vệ, gìn giữ ngôi nhà chung. Tổ chức các hoạt động, tập huấn nhằm chia sẽ kinh nghiệm bảo tồn, truyền đạt kinh nghiệm, kiến thức bản địa từ thế hệ đi trước cho thế hệ sau, nhằm lưu giữ những tri thức bản địa về cách thức xây dựng, tổ chức lễ hội truyền thống hay các giá trị văn hóa phi vật thể đặc trưng của dân tộc.
- Các nhà nghiên cứu, chuyên môn cần hỗ trợ, tư vấn và là cầu nối liên kết giữa dân làng và chính quyền trong việc hài hòa, thống nhất bảo tồn và gìn giữ các giá trị văn hóa, kiến trúc của ngôi nhà Gươl. Bên cạnh đó, đề xuất những hình thức du lịch gắn với đặc trưng văn hóa bản địa tại công trình kiến trúc này, góp phần nâng cao giá trị công trình;
- Trong bối cảnh hiện nay, một số chức năng cũng như hình thức kiến trúc ngôi nhà có sự biến dạng, thay đổi. Một số trường hợp biến đổi đó có thể làm giảm giá trị và ảnh hưởng xấu đến thẩm mỹ, kiến trúc của công trình. Chính vì vậy, cần có nghiên cứu toàn diện chắc lọc những giá trị của ngôi nhà để có các giải pháp đề xuất về việc biến đổi và áp dụng trong bối cảnh mới sao cho phù hợp và góp phần gìn giữ, phát huy giá trị thể loại kiến trúc này.
Kết luận
Cơ Tu được biết là dân tộc sinh sống lâu đời, tập trung chủ yếu ở khu vực tỉnh Quảng Nam, TP Huế và TP Đà Nẵng. Làng dân tộc Cơ Tu xưa có hình dạng hình tròn, oval, vành khuyên… với ngôi nhà Gươl nằm ở trung tâm thể hiện sự đoàn kết, thống nhất và sức mạnh của làng. Trải qua nhiều giai đoạn phát triển của lịch sử, ngôi làng cũng đã dần biến đổi tùy thuộc vào vị trí, địa hình và giao thông. Ngôi nhà Gươl, nhà chung của làng cũng đang chịu ảnh hưởng tương tự.
Qua khảo sát thực địa các công trình kiến trúc nhà Gươl tại tỉnh Quảng Nam và thành phố Huế, bài viết đã cho thấy thực trạng kiến trúc và những biến đổi của ngôi nhà Gươl của dân tộc Cơ Tu hiện nay. Vật liệu hiện đại như bê tông, tôn, sắt thép cũng đã dần hiện diện ở một số vùng, trong khi sàn nhà Gươl được nâng cao để tạo thêm không gian phục vụ cho một số chức năng mới hiện tại như kho, để xe… Bếp truyền thống trong ngôi nhà cũng không còn ở một số thôn nhằm mục đích chống hỏa hoạn hay tạo không gian sân khấu cho các sự kiện hội họp. Những biến đổi đó có thể là quy luật tất yếu dưới tác động đô thị hóa, hiện đại hóa và có thể có những ưu điểm và nhược điểm. Chính vì vậy, bài viết này cũng đã đề xuất một số giải pháp nhằm bảo tồn và phát huy giá trị của loại hình kiến trúc đặc trưng dân tộc Cơ Tu này.
TS. KTS. Nguyễn Ngọc Tùng – TS. KTS. Trương Hoàng Phương1
ThS. KTS. Nguyễn Phong Cảnh – GS. Hirohide Kobayashi2
TS. Lê Anh Tuấn – ThS. Trần Đức Sáng3
PGS. TS. KTS. Khuất Tân Hưng4
1 Khoa Kiến trúc, Trường Đại học Khoa học, Đại học Huế
2 Trường Sau Đại học Nghiên cứu môi trường toàn cầu, Đại học Kyoto, Nhật Bản
3 Phân viện Viện Văn hóa Nghệ thuật quốc gia Việt Nam tại Huế
4Trường Đại học Kiến trúc Hà Nội
(Bài đăng trên Tạp chí Kiến trúc số 03-2025)
Tài liệu tham khảo
[1] Tạ Đức (2002): “Tìm hiểu văn hóa Cơ Tu” – NXB Thuận Hóa.
[2] Nguyễn Hữu Hoành, Từ Thu Hằng (đồng chủ biên) & cộng sự (2014), “Bách Khoa thư các dân tộc Việt Nam” – tập 1, NXB Từ điển bách khoa. Tr. 377-394.
[3] Lưu Hùng (2006), “Góp phần tìm hiểu văn hóa Cơ-tu”. – NXB Khoa học xã hội.
[4] Joann L. Schrock, William Stockton, Jr., Elaine M. Murphy, Marilou Fromme (1966), Minority groups in the Republic Vietnam. Clearinghouse.
[5] SORO (1965), Ethnographic Study Series: Selected groups in the Republic of Vietnam – The Cơ Tu, Prepublication working paper. Washinton D.C 20016.
[6] Nguyễn Hữu Thông (chủ biên), Nguyễn Phước Bảo Đàn, Lê Anh Tuấn, Trần Đức Sáng (2004), “Cơ Tu kẻ sống đầu ngọn nước” – NXB Thuận Hóa.
[7] Tổng cục thống kê (2020), “Kết quả toàn bộ tổng điều tra dân số và nhà ở năm 2019”. NXB Thống Kê.
[8] Nguyễn Khắc Tụng (2015), “Nhà ở cổ truyền các dân tộc Việt Nam”. Tập 2. NXB Khoa học xã hội.
[9] Nguyen Ngoc Tung, Hirohide Kobayashi, Truong Hoang Phuong, Miki Yoshizumi, Le Anh Tuan, Tran Duc Sang (2019), Reconstruction process of traditional community house of Cơ Tu ethnic minority – Case study of Aka hamlet in Nam Dong district, Thua Thien Hue province, Vietnam. in Yong Shao et al [eds], Vernacular and earthen architecture towards local development, Tongji University Press, Shanghai, ISBN 978-7-5608-8656-5, Pp. 518-524, China.
[10] Nguyễn Ngọc Tùng, Hirohide Kobayashi, Võ Ngọc Đức (2014). “Kiến trúc nhà Gươl và phương pháp xây dựng bằng kích thước cơ thể của người Cơ tu” – Tạp chí Khoa học & Công nghệ, Trường Đại học Khoa học Huế. Số. 1, Tr. 203-212.
[11] Trần Tấn Vịnh (2013), Bức tranh văn hóa tộc người Cơ Tu, NXB Thời Đại.

































