- Tên đồ án: Phú Thượng – Thành phố xe đạp
- Giải thưởng: Giải Ba Loa Thành 2020
- SVTH: Chí Nguyệt Khánh
- GVHD: KTS Văn Tấn Hoàng
- Trường: ĐH Văn Lang
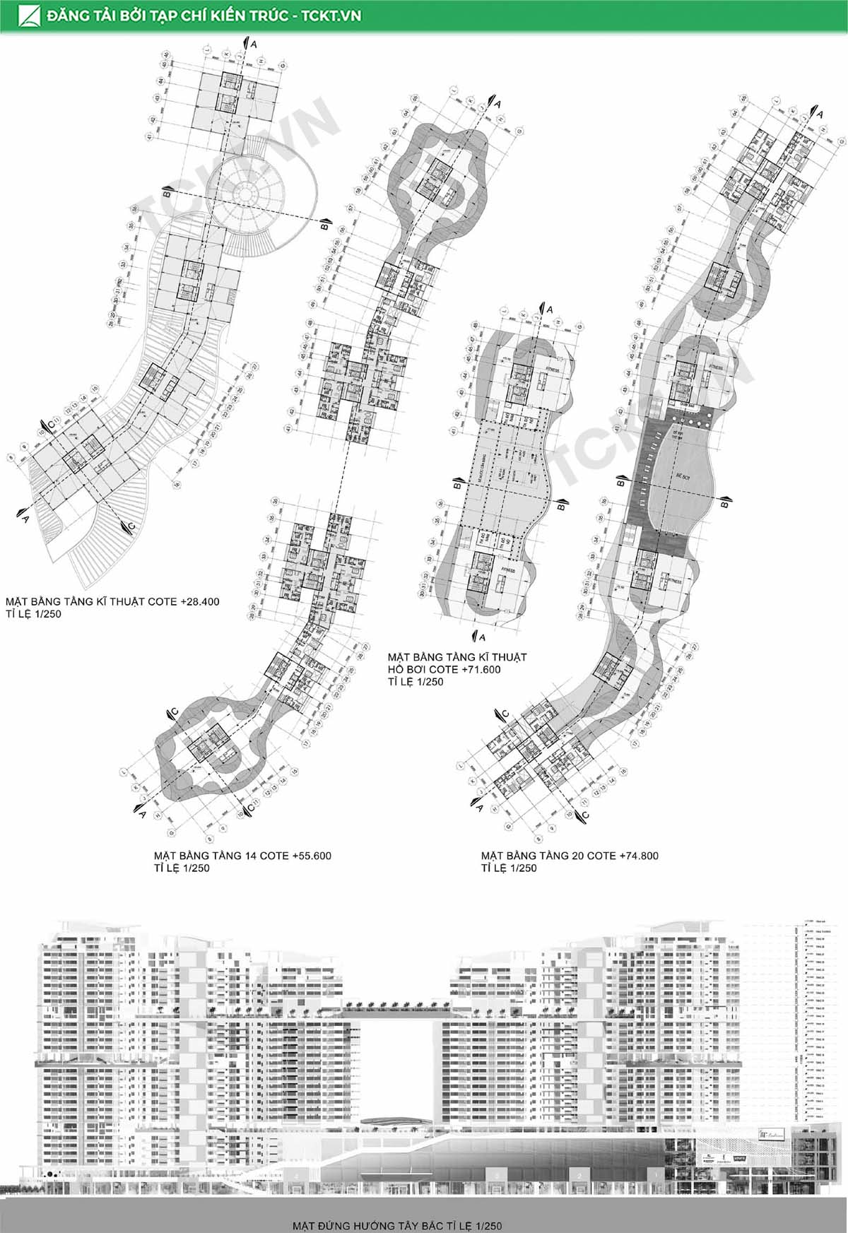
Mặt đứng công trình lấy ý tưởng từ sự mềm mại của dòng sông với điểm nhấn là các tầng dịch vụ, mang đến cho công trình sự độc đáo về mặt hình thức, cung cấp những dịch vụ phúc lợi cho dân cư về mặt công năng.
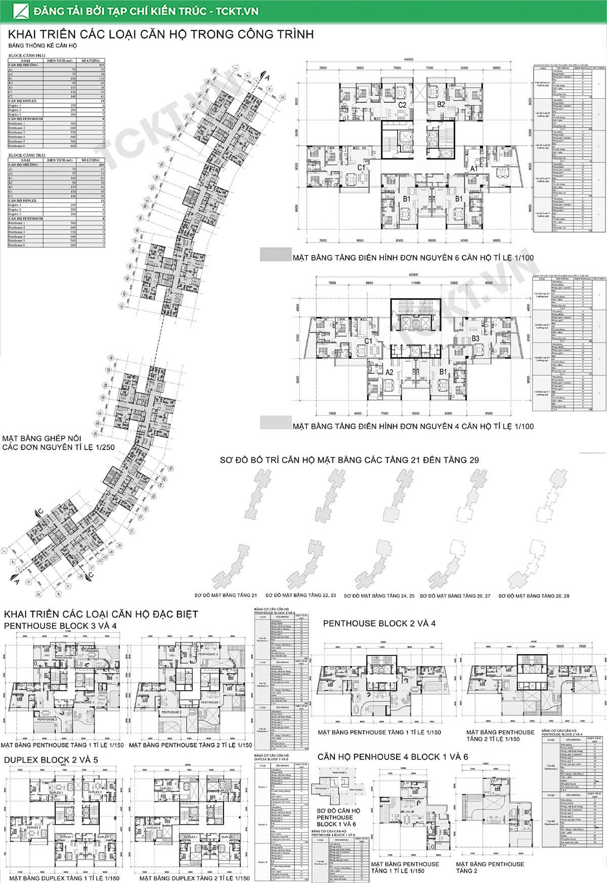
Các đơn nguyên được xếp thành dây phù hợp với đặc điểm khu đất. đảm bảo các đơn nguyên đều đón gió mát và có hướng nhìn ra bờ sông cảnh quan. Hình thức mặt đứng độc đáo khi các căn hộ được tổ chức giật cấp cao dần đều từ tầng 21.
Các hình ảnh khác của đồ án:
Xem thêm các đồ án đạt giải:
(Các đồ án sẽ tiếp tục được Tạp chí Kiến trúc cập nhật trong thời gian tới, trân trọng kính mời quý bạn đọc theo dõi tại: https://www.tapchikientruc.com.vn/cuoc-thi/ket-qua-giai-thuong-loa-thanh-2020-giai-thuong-duoc-cho-doi-nhat-nam-cua-sv-kien-truc-quy-hoach.html
Giải Nhất (2)
- Bảo tàng Lãnh Mỹ A – CC17 – Phạm Duy Tân – ĐH Kiến trúc TP. HCM
- Góc sân sau – Những khoảng lặng bên kênh đào Hương Vinh – QH16 – Lê Quốc – ĐH Khoa học Huế
Giải Nhì (7)
- Trung tâm trưng bày và nghiên cứu sinh học Savana Đồng Tháp Mười – CC16 – Nguyễn Tiền Phong – ĐH Kiến trúc TP. HCM
- Hải Vân Quan – CC43 – Nguyễn Hải Ninh – ĐH Xây dựng
- Đường và Đạo – Dụng của cái Không – QH01 – Nguyễn Thị Thúy Ngân, Nguyễn Thị Ngọc – ĐH Kiến trúc Hà Nội
- QH chi tiết khu dân cư kết nối xanh khuyến khích giao thông không động cơ thuộc xã Tân Kiên, huyện Bình Chánh, Tp. HCM – QH06 – Trần Mộng Diễm Mi – ĐH Tôn Đức Thắng
- Khu nhà ở Thụy Khuê – NƠ09 – Nguyễn Thị Thùy – ĐH Kiến trúc Hà Nội
- Nhà hàng Tây Ban Nha – NT03 – Đinh Xuân Quỳnh – ĐH Kiến trúc TP. HCM
- Trang trí công trình Khách sạn “Hội An” – NT05 – Đỗ Thị Ly Nin – ĐH Hoa Sen
Giải Ba (12)
- Trung tâm văn hóa du lịch Búng Bình Tiên – CC08 – Huỳnh Đông Khánh – HUTECH
- Chợ Phiên Bắc Hà – CC21 – Đỗ Xuân Huy – ĐHDL Phương Đông
- Trung tâm Mục vụ và Linh thao Đức Mẹ Tà Pao – CC27 – Nguyễn Đình Văn – ĐH Tôn Đức Thắng
- Không gian văn hóa Thanh Tiên – Huế – CC47 – Phan Thị Nguyệt Minh – ĐH Khoa học Huế
- Thiết kế đô thị thành cổ Vinh – Tp. Vinh, tỉnh Nghệ An – QH02 – Hồ Ngọc Hà – ĐH Kiến Trúc TP. HCM
- QH phân khu Khu du lịch than, Tp. Cẩm Phả – QH14 – Lê Quyền Linh – ĐH Xây dựng
- Phú Thượng – Thành phố xe đạp – QH19 – Huỳnh Thị Diệu Linh – ĐH Kiến trúc Hà Nội
- Chung cư cao tầng kết hợp TM-DV bến Hàm Tử – Q. 5 – Tp. HCM – NƠ01 – Chí Nguyệt Khánh – ĐH Văn Lang
- Kiến tạo môi trường sống, bảo tồn và phát triển nghề dệt thổ cẩm cảu Người K’ho – NƠ04 – Trần Thị Thanh Trúc – ĐH Bách khoa TP HCM
- Cụm nhà ở Tây Tựu – NƠ07 – Lê Văn Long – ĐH Kiến trúc Hà Nội
- Tổ hợp chung cư nhà ở Well – Sifted – NƠ08 – Hồ Thủy Tiên – ĐH Kiến trúc Hà Nội
- Trang trí công trình Triển lãm trưng bày Xưởng dệt Bảy Hiền – NT06 – Nguyễn Huy – ĐH Hoa Sen
Giải Khuyến khích (14)
- Trung tâm quảng bá và phát triển sản phẩm Dừa – Bến Tre – CC03 – Nguyễn Duy Linh – ĐH Văn Lang
- Trung tâm quảng bá và nghiên cứu cà phê Arabica – Đà Lạt – CC05 – Nguyễn Vũ Hải Âu – ĐH Văn Lang
- Bảo tàng lịch sử Khẩn Hoang Nam Bộ – CC07 – Nguyễn Nhất Bảo – HUTECH
- Mái ấm Chùa Bình An – CC15- Bùi Thị Nhung – ĐH Kiến trúc TP. HCM
- Trung tâm văn hóa Sa Huỳnh – CC34 – Nguyễn Ngọc Nhất – ĐH Kiến trúc Đà Nẵng
- Liên hiệp các Hội Văn học – Nghệ thuật Hà Nội – CC52 – Hà Minh Tuấn – ĐH Kiến trúc Hà Nội
- Thư viện đa chức năng Hòa Bình – CC56 – Nguyễn Minh Đức – ĐH Kiến trúc Hà Nội
- Thiế kế kiến trúc cảnh quan công viên trung tâm đô thị 23/9 Quận 1 – Tp. Hồ Chí Minh – Healing Space – QH03 – Nguyễn Thị Tuyết Nhung – ĐH Kiến Trúc TP. HCM
- QH Xây dựng thị trấn Sìn Hồ, huyện Sìn Hồ, tỉnh Lai Châu – QH18 – Lê Anh Tuấn, Võ Giang Thịnh, Nguyễn Thị Thu Hằng – ĐH Kiến trúc Hà Nội
- Trục đồng bào Tp. Pleiku – Gia Lai – QH04 – Võ Thị Hường – ĐH Duy Tân
- Khu đô thị Văn hóa dành cho người Việt gốc Hoa – QH09 – Lê Võ Hoàng Vũ – ĐH Thủ Dầu Một
- Chung cư cao tầng Cây Bàng – Thủ Thiêm – Q2. Tp. HCM – NƠ02 – Tôn Văn Nghĩa – HUTECH
- Văn phòng chia sẻ 6 – Working Space – NT10 – Đặng Nguyên Quảng – ĐH Xây Dựng
- Nhà triển lãm nghệ thuật Art Gallery – NT11 – Nguyễn Minh Đức – ĐH Kiến trúc Hà Nội
Đinh Hằng – TCKT.VN
© Tạp chí kiến trúc




























